Сдается офис в Москве, д 39 стр 1
На карте
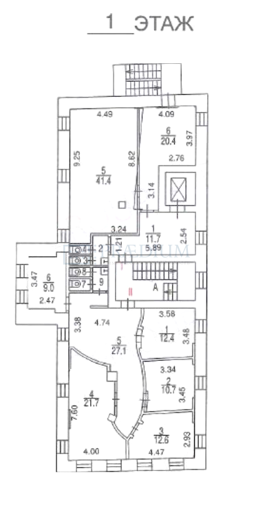
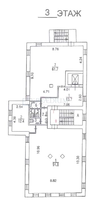
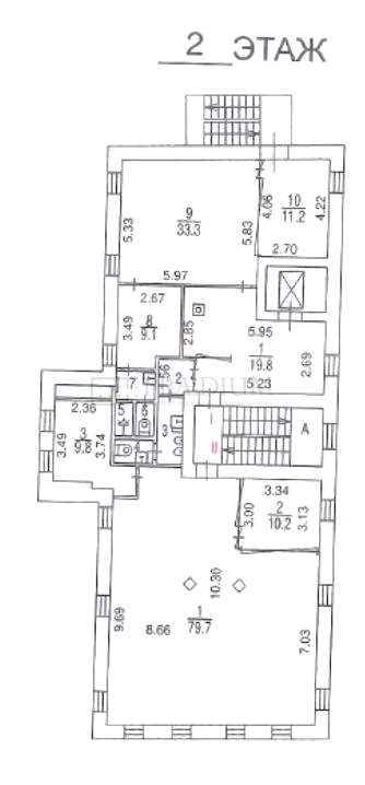
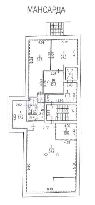
Об объекте
ID: L11135
Аренда офисного отдельно стоящего здания класса B+, расположенного недалеко от станции метро Бауманская.
Просторные светлые помещения общей площадью 952,2 м2 станут идеальным решением для ведения успешного бизнеса.
Интерьер выполнен в популярном стиле лофт, создавая приятную творческую атмосферу.
Качественный ремонт позволяет сразу приступить к работе без дополнительного вложения средств.
Во внутреннем дворе создана уютная зелёная зона, идеальная для отдыха сотрудников в тёплое время года.
Здание оборудовано современной системой вентиляции и центрального кондиционирования, обеспечивающей комфортные условия круглый год. Для удобства персонала предусмотрены собственные санузлы на каждом этаже.
Дополнительно предлагаются парковочные места на девять автомобилей.
Безопасность гарантируют установленные камеры видеонаблюдения и наличие охраняемой территории.
Объект удобно расположен вблизи развитой инфраструктуры, включающей рестораны, магазины, аптеки, спортивные клубы и остановки городского транспорта.
Возможности разнообразны: медицинское учреждение, банк, свободный профиль офиса или клиники — каждый найдёт здесь оптимальное пространство для своего дела.
Ваш идеальный выбор для роста и успеха ждёт именно здесь!
Для уточнения параметров аренды или продажи, и записи на индивидуальный просмотр, звоните!
23.09.2015 | 1
№125066
в месяц
Ставка аренды за м2 2 084 ₽
Местоположение
ГородМосква
МетроЭлектрозаводская
Параметры объекта
Этажность5
Площадь общая952
Основное
2015-09-23 07:41:13
Похожие объявления
Отдел коммерческой недвижимости
Скажите, что нашли эти контакты на сайте поиска
недвижимости КваддРу
недвижимости КваддРу
