Главная Коммерческая Аренда Офисы Объект №125459
Сдается офис в Москве, д 26
На карте
Инфраструктура Панорама
Инфраструктура
Школы
Детские сады
Поликлиники
Продуктовые магазины
Кафе
Об объекте
ID: L12708
Аренда офисов премиум-класса в Москве
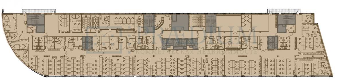
Предлагается в аренду два этажа целиком — 8-й и 9-й — общей площадью 4 558 квадратных метров на 525 рабочих мест в деловом центре класса A «Северное Сияние».
Адрес: г. Москва, улица Правды, дом 26.
Удобная транспортная доступность: всего 5 минут ходьбы от станции метро «Савеловская», близость Третьего транспортного кольца и Садового кольца. Расположены поблизости важные бизнес-центры и офисы крупных компаний района «Белорусская».
Пространства спланированы оптимально: смесь открытых зон и отдельных кабинетов. Для руководителей предусмотрен эксклюзивный VIP-блок с просторной приемной, кабинетами директоров, удобными переговорными и уютной комнатой отдыха.
Современные интерьеры выполнены с использованием высококачественных материалов. Офис оборудован мебелью высокого уровня, демонстрируемой на фотографиях. Помещение готово к переезду клиентов спустя всего лишь 2 месяца после заключения договора аренды.
Долгосрочная аренда с возможностью расширения площади внутри здания по вашему запросу.
Профессиональная эксплуатация зданий и ответственная поддержка арендодателя.
15.04.2010 | 1
№125459
в месяц
Ставка аренды за м2 4 500 ₽
Местоположение
ГородМосква
МетроСавёловская
Параметры объекта
Этаж9
Этажность15
Площадь общая4558
Основное
2010-04-15 14:07:20
Отдел коммерческой недвижимости
Скажите, что нашли эти контакты на сайте поиска
недвижимости КваддРу
недвижимости КваддРу
