Главная Коммерческая Аренда Офисы Объект №125478
Сдается офис в Москве, д 26
На карте
Инфраструктура Панорама
Инфраструктура
Школы
Детские сады
Поликлиники
Продуктовые магазины
Кафе
Об объекте
ID: L11170
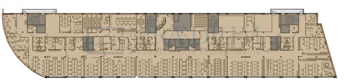
Сдается в аренду офисный блок площадью 2279 м2 класса В+ в современном бизнес-центре с профессионально выполненной планировкой, объединяющий комфортабельные переговорные комнаты, индивидуальные кабинеты и свободные зоны open-space.
До ближайшей станции метро Савёловская пешком всего несколько минут.
Особое внимание уделено комфорту сотрудников: предусмотрен отдельный санузел и удобная кухонная зона.
Важным преимуществом является удобное расположение объекта: здесь прекрасно развита дорожная инфраструктура — соседство с третьим транспортным кольцом и развязкой Савёловской эстакады, позволяющее оперативно добираться до любой точки города.
Инженерные сети обслуживаются ведущими операторами связи, обеспечивая надежное покрытие интернетом и телефонией.
Высококачественное техническое оснащение и профессиональная работа крупнейших отечественных провайдеров связи обеспечивают надежный сигнал и скоростной интернет.
Такой вариант подойдет организациям, стремящимся обустроить комфортное и эффективное рабочее пространство, способствующее росту производительности и улучшению имиджа компании.
Для уточнения параметров аренды или продажи, и записи на индивидуальный просмотр, звоните!
15.04.2010 | 1
№125478
в месяц
Ставка аренды за м2 4 500 ₽
Местоположение
ГородМосква
МетроСавёловская
Параметры объекта
Этаж9
Этажность15
Площадь общая2279
Основное
2010-04-15 14:07:20
Похожие объявления
По цене По местоположению По цене и местоположению
Отдел коммерческой недвижимости
Скажите, что нашли эти контакты на сайте поиска
недвижимости КваддРу
недвижимости КваддРу
