Сдается офис в Москве, Сколковское шоссе, д 43 стр 6
На карте
Об объекте
ID: L12237
Аренда премиального офисного здания 13412,2 м2 в деловом квартале Сколково Парк.
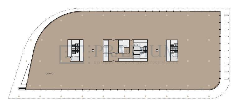
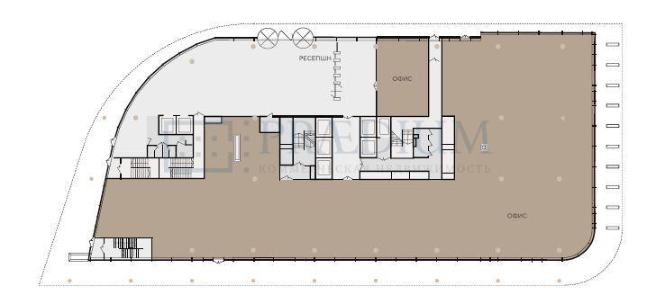
o 1, 2, 3, 4 и 5 этажи, здание целиком
o Класс А+
o Уникальный деловой квартал с собственным парком и озером
o Качественная дизайнерская отделка под арендатора, включая мебель
o Возможна аренда без отделки
o Свободная функциональная планировка
o Стеклянные офисные перегородки
o Некоторые офисы имеют собственный балкон
o Панорамное остекление
o Высота потолка 3,9 м
o Презентабельная входная группа
o Собственная торговая галерея площадью 8500 м2
o Собственный ландшафтный парк с озером, открытым кафе и прогулочными зонами
o Премиальный деловой квартал Сколково Парк состоящий из 6 офисных зданий
o Шаттл-басы от метро Аминьевская, регулярные рейсы в течение дня
o Ближайшие станции метро Аминьевская, Славянский бульвар и Озерная
o Ближайшие станции метро Д3 Немчиновка, Очаково и Мещерская
o Развитая внутренняя инфраструктура бизнес центра
o Современные инженерные системы
o Все коммуникации центральные
o Круглосуточная охрана и видеонаблюдение
o Подземная парковка
o Наземная парковка
Здания расположены в Можайском районе. Общая площадь зданий 212000 м2. Этажность 6. Год постройки 2024.
Заинтересованы в аренде или покупке коммерческой недвижимости, записывайтесь на индивидуальный просмотр. Звоните!
28.05.2024 | 1
№125725
в месяц
Ставка аренды за м2 7 218 ₽
Местоположение
ГородМосква
УлицаСколковское шоссе
Параметры объекта
Этажность6
Площадь общая13414
Основное
2024-05-28 10:38:01
Похожие объявления
Другие объявления по Сколковское шоссе
Отдел коммерческой недвижимости
Скажите, что нашли эти контакты на сайте поиска
недвижимости КваддРу
недвижимости КваддРу
