Сдается офис в Москве, д 23 стр 1
На карте
Об объекте
ID: L11130
Сдается офисное помещение в состоянии Shell & Core с потолками высотой 3,6 метра.
Оформление интерьера может выполняться по желанию арендатора либо собственником, подробности уточняются в ходе переговоров.
Здание размещено в интенсивно развивающемся деловом районе столицы.
Проект разработан с использованием принципа «тектонических сдвигов», отражающих оригинальное соотношение фасадных секций.
Интерьер украшен благородными природными материалами, дарующими ощущение природы и простоты.
Пользователи бизнес-центра смогут наслаждаться красивыми видами с доступной для эксплуатации крыши и комфортного открытого пространства террас.
Дизайн общественных зон и лобби подчеркивает общую концепцию проекта, создавая благоприятную среду для эффективного ведения бизнеса и повышения корпоративного статуса.
Отличная пешеходная доступность обеспечивается близостью трех станций метро: Калужская, Воронцовская и Новаторская.
Для уточнения параметров аренды или продажи, и записи на индивидуальный просмотр, звоните!
11.04.2023 | 2
№125875
в месяц
Ставка аренды за м2 3 591 ₽
Местоположение
ГородМосква
Параметры объекта
Этаж12
Этажность13
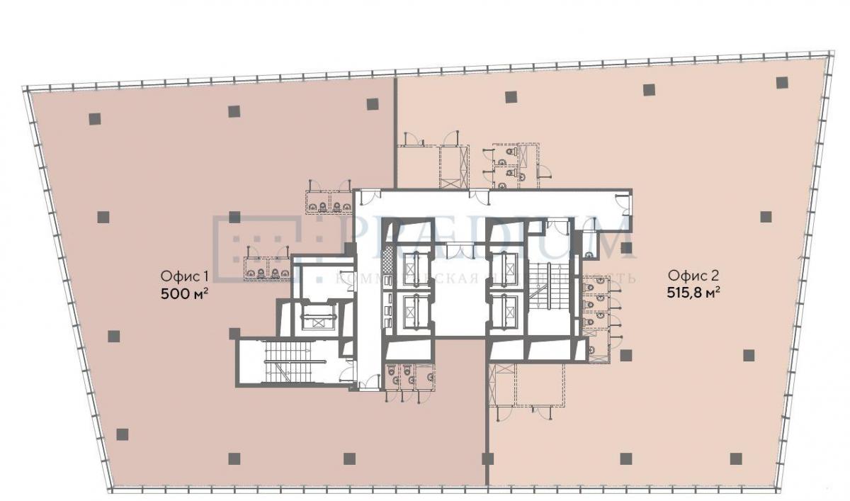
Площадь общая1016
Основное
2023-04-11 08:29:12
Похожие объявления
Отдел коммерческой недвижимости
Скажите, что нашли эти контакты на сайте поиска
недвижимости КваддРу
недвижимости КваддРу
