Главная Коммерческая Аренда Офисы Объект №126030
Сдается офис в Москве, д 4 стр 2
На карте
Инфраструктура Панорама
Инфраструктура
Школы
Детские сады
Поликлиники
Продуктовые магазины
Кафе
Об объекте
ID: L10630
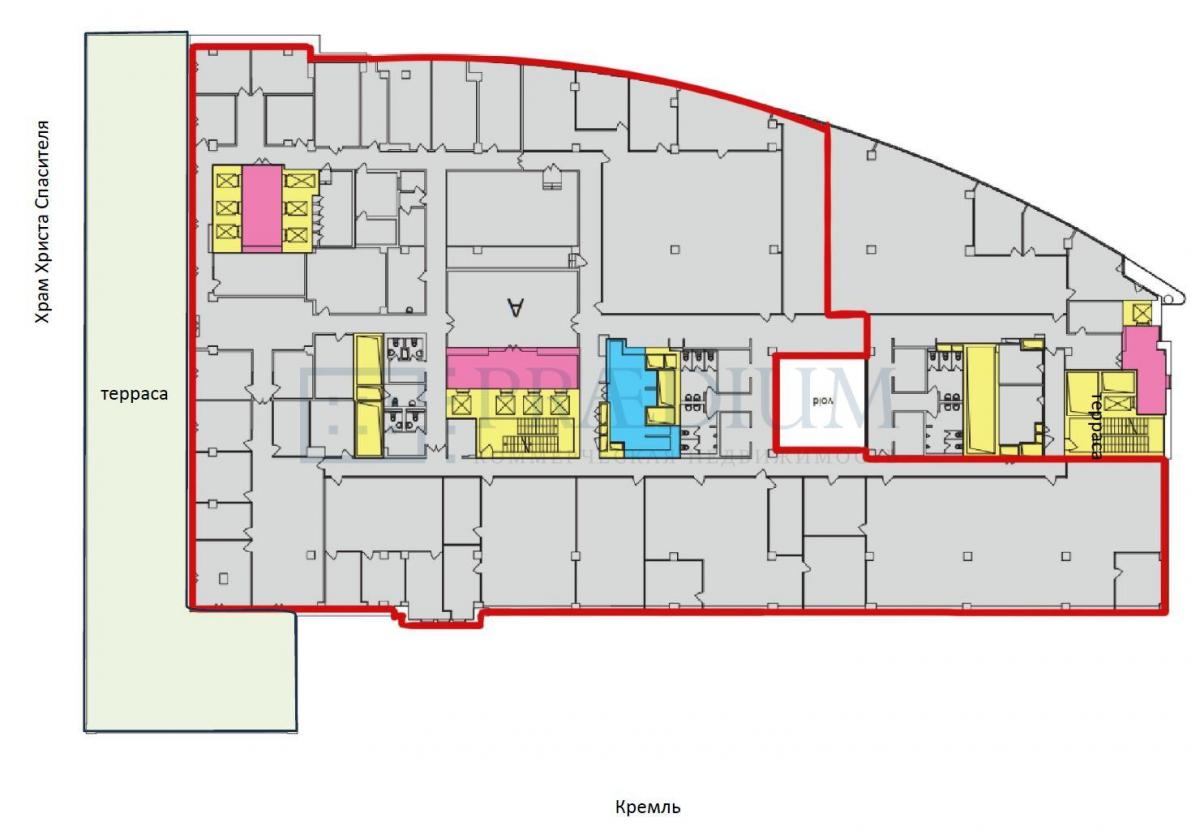
Аренда премиального офиса 2973,7 м2 в районе станции метро Библиотека имени Ленина, Охотный ряд и Арбатская.
o 6 этаж
o Класс А+
o Смешанная планировка
o Качественная офисная отделка
o Кабинеты, кухня, с/у
o Высота потолков 2,85
o Историческая и узнаваемая локация
o Бизнес центр Романов Двор 2
o Ближайшие станции метро Библиотека имени Ленина, Александровский сад, Охотный ряд и Арбатская, 3 - 6 минут пешком
o В шаговой доступности вся необходимая инфраструктура
o Все коммуникации центральные
o Круглосуточная охрана и видеонаблюдение
o Подземная парковка
o Дата начала аренды обсуждается
Здание расположено в районе Арбат. Общая площадь здания 30888 м2. Год постройки 2003.
Заинтересованы в аренде или покупке коммерческой недвижимости, записывайтесь на индивидуальный просмотр. Звоните!
23.07.2010 | 2
№126030
в месяц
Ставка аренды за м2 7 999 ₽
Местоположение
ГородМосква
МетроАрбатская
Параметры объекта
Этаж6
Этажность7
Площадь общая2974
Основное
2010-07-23 13:22:51
Отдел коммерческой недвижимости
Скажите, что нашли эти контакты на сайте поиска
недвижимости КваддРу
недвижимости КваддРу
