Главная Коммерческая Аренда Офисы Объект №126446
Сдается офис в Москве, Бумажный проезд, д 19 стр 4
На карте
Инфраструктура Панорама
Инфраструктура
Школы
Детские сады
Поликлиники
Продуктовые магазины
Кафе
Об объекте
ID: L11414
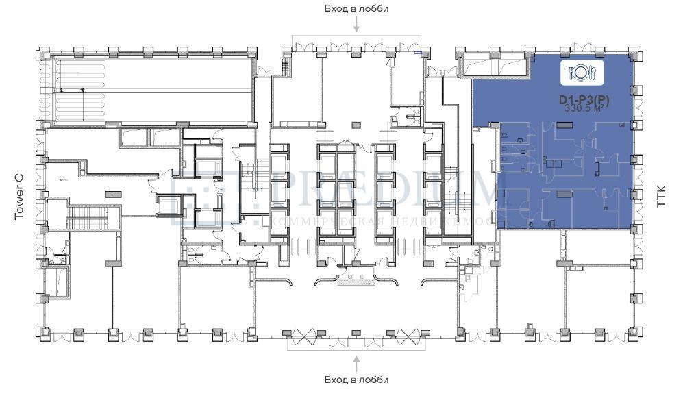
БЦ "STONE TOWERS"
Предлагаем В АРЕНДУ Помещение Свободного Назначения в башне "D" офисного квартала.
Первый этаж.
Общая площадь - 330м2
Без отделки.
Высота потолков - 4,1 м.
Витринное остекление.
Место для размещения вывески.
Круглосуточная система контроля доступа.
Центральная система кондиционирования.
Приточно-вытяжная система вентиляции.
Система пожаротушения: автоматическая.
Арендная ставка указана с учетом НДС. ОРЕХ - 4,800 м2/год
Паркинг наземный и подземный.
Аренда м/м - 30-35 000 т.р.
Срок сдачи конец 2025г. ключи первый квартал 2026г.
25.06.2020 | 1
№126446
в месяц
Ставка аренды за м2 9 552 ₽
Местоположение
ГородМосква
МетроСавёловская
УлицаБумажный проезд
Параметры объекта
Этаж1
Этажность19
Площадь общая331
Основное
2020-06-25 08:33:18
Похожие объявления
По цене По местоположению По цене и местоположению
Другие объявления по Бумажный проезд
Отдел коммерческой недвижимости
Скажите, что нашли эти контакты на сайте поиска
недвижимости КваддРу
недвижимости КваддРу
