Сдается офис в Москве, д 34 стр 3
На карте
Об объекте
ID: o96438
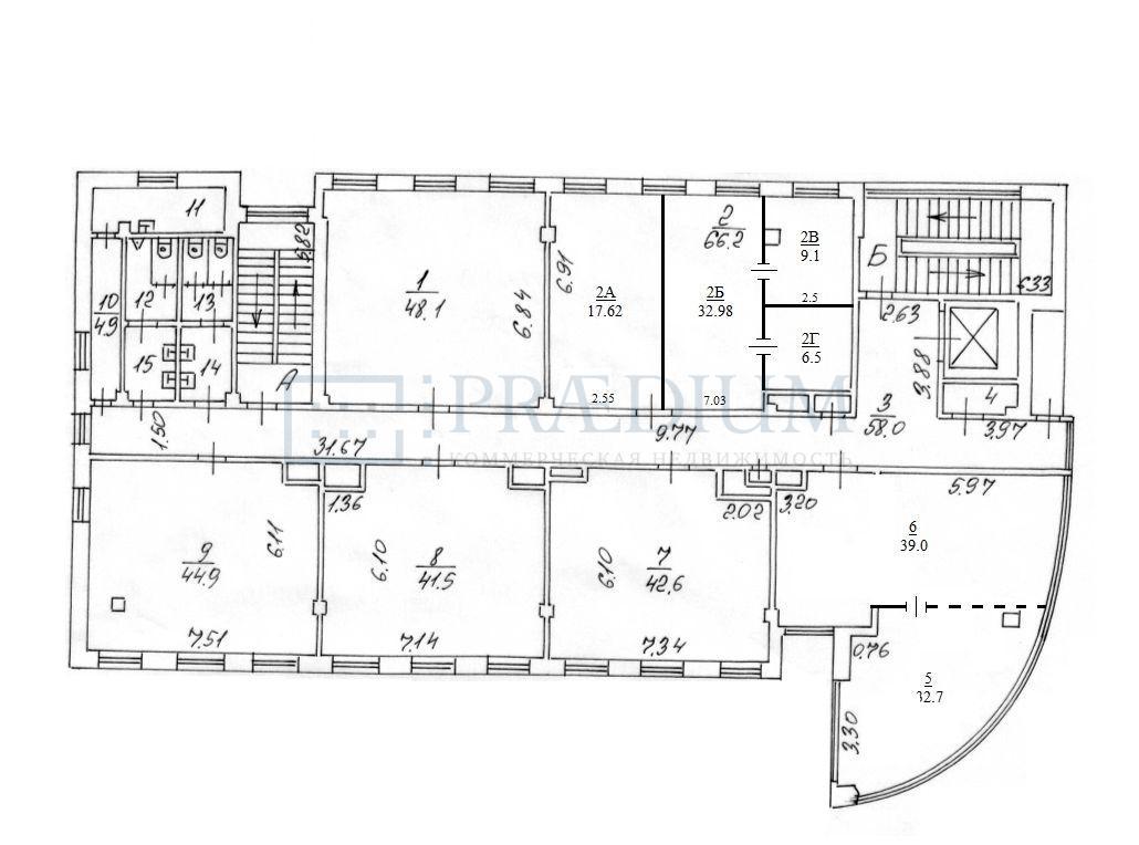
Уважаемый Арендатор, предлагаем Вам арендовать офис 433.0 м² на 4 этаже на выгодных условиях.
Приточно-вытяжная вентиляция. Центральное кондиционирование. Интернет, телефония. Охрана. Видеонаблюдение. Система контроля доступа. Лифты: 1 шт.. Подземная парковка. Наземная парковка.
ЦАО Москвы. В 10 минутах от м. Марксистская, Крестьянская застава
Быстро реагируем на обращения, организуем встречу на объекте в удобное для Вас время, направим план помещения и ответим на все возникшие вопросы!
Звоните сейчас и получите лучшие условия на рынке!
03.02.2015 | 1
№127210
в месяц
Ставка аренды за м2 3 750 ₽
Местоположение
ГородМосква
МетроМарксистская
Параметры объекта
Этаж4
Этажность5
Площадь общая433
Основное
2015-02-03 12:48:54
Похожие объявления
Отдел коммерческой недвижимости
Скажите, что нашли эти контакты на сайте поиска
недвижимости КваддРу
недвижимости КваддРу
