Сдается офис в Москве, д 23 стр 1
На карте
Об объекте
ID: o95459
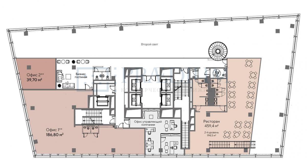
Уважаемый Арендатор, предлагаем Вам арендовать офис 226.5 м² на 2 этаже на выгодных условиях.
Приточно-вытяжная вентиляция. Центральное кондиционирование. Пожарная сигнализация. Интернет, телефония. Охрана. Видеонаблюдение. Система контроля доступа. Лифты: 4 пассаж., 1 груз.. Подземная парковка.
ЮЗАО Москвы. В 10 минутах от м. Воронцовская ТПК, Калужская
Быстро реагируем на обращения, организуем встречу на объекте в удобное для Вас время, направим план помещения и ответим на все возникшие вопросы!
Звоните сейчас и получите лучшие условия на рынке!
11.04.2023 | 1
№127259
в месяц
Ставка аренды за м2 3 263 ₽
Местоположение
ГородМосква
Параметры объекта
Этаж2
Этажность13
Площадь общая227
Основное
2023-04-11 08:29:12
Похожие объявления
Отдел коммерческой недвижимости
Скажите, что нашли эти контакты на сайте поиска
недвижимости КваддРу
недвижимости КваддРу
