Сдается офис в Москве, Бумажный проезд, д 19 стр 2
На карте
Об объекте
ID: o97036
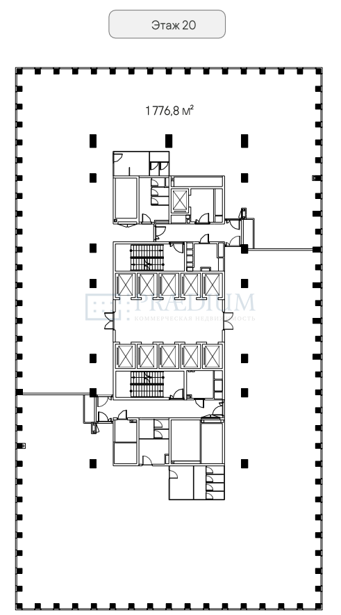
Уважаемый Арендатор, предлагаем Вам арендовать в БЦ "STONE Towers, башня В" ("STONE Towers, tower В") офис 3553.6 м² на 20 этаже на выгодных условиях.
Приточно-вытяжная вентиляция. Центральное кондиционирование. Интернет, телефония. Охрана. Видеонаблюдение. Система контроля доступа. Лифты: 10 пассаж., 1 сервисный, 2 в паркинг Schindler. Подземная парковка. Наземная парковка.
САО Москвы. В 5 минутах от м. Савеловская
Быстро реагируем на обращения, организуем встречу на объекте в удобное для Вас время, направим план помещения и ответим на все возникшие вопросы!
Звоните сейчас и получите лучшие условия на рынке!
26.12.2017 | 1
№127295
в месяц
Ставка аренды за м2 5 816 ₽
Местоположение
ГородМосква
МетроСавёловская
УлицаБумажный проезд
Параметры объекта
Этаж20
Этажность23
Площадь общая3554
Основное
2017-12-26 11:57:11
Похожие объявления
Другие объявления по Бумажный проезд
Отдел коммерческой недвижимости
Скажите, что нашли эти контакты на сайте поиска
недвижимости КваддРу
недвижимости КваддРу
