Сдается офис в Москве, Бумажный проезд, д 19 стр 4
На карте
Об объекте
ID: o96790
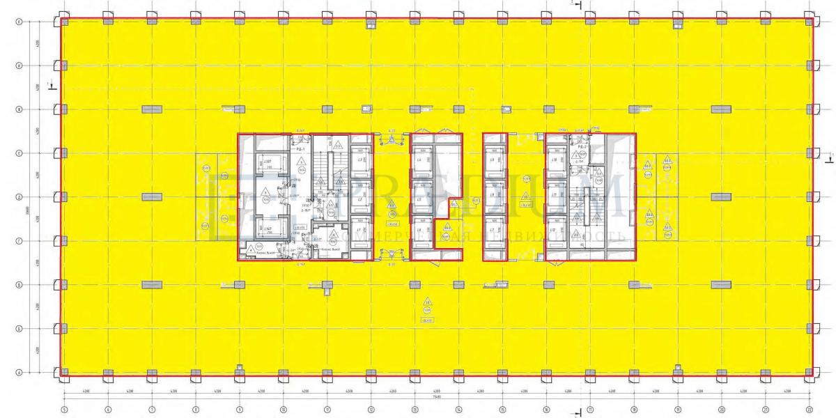
Уважаемый Арендатор, предлагаем Вам арендовать в БЦ "STONE Towers, башня D" ("STONE Towers, tower D") офис 6156.9 м² на 12 этаже на выгодных условиях.
Приточно-вытяжная вентиляция. Центральное кондиционирование. Пожарная сигнализация. Интернет, телефония. Охрана. Видеонаблюдение. Система контроля доступа. Лифты: бесшумные. Подземная парковка. Наземная парковка.
САО Москвы. В 5 минутах от м. Савеловская
Быстро реагируем на обращения, организуем встречу на объекте в удобное для Вас время, направим план помещения и ответим на все возникшие вопросы!
Звоните сейчас и получите лучшие условия на рынке!
25.06.2020 | 1
№127419
в месяц
Ставка аренды за м2 5 693 ₽
Местоположение
ГородМосква
МетроСавёловская
УлицаБумажный проезд
Параметры объекта
Этаж12
Этажность19
Площадь общая6157
Основное
2020-06-25 08:33:18
Похожие объявления
Другие объявления по Бумажный проезд
Отдел коммерческой недвижимости
Скажите, что нашли эти контакты на сайте поиска
недвижимости КваддРу
недвижимости КваддРу
