Сдается офис в Москве, д 10
На карте
Об объекте
ID: L12874
Вниманию Арендаторов!
Сдается готовый к заселению офис в самом центре столицы!
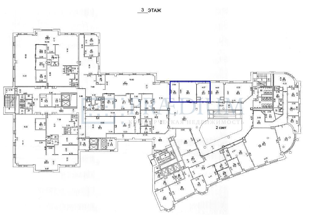
Общая площадь вакантного блока 74,91м2
Эксплуатационные расходы в местах общего пользования включены в арендную ставку
Обеспечительный депозит: 2 месяца аренды
Срок аренды: от 3‐х лет
Ежегодная индексация арендной ставки: ИПЦ
Стоимость аренды машино-места в подземном паркинге: 22 500 руб. в мес., не вкл. НДС.
22.03.2010 | 1
№128025
в месяц
Ставка аренды за м2 5 711 ₽
Местоположение
ГородМосква
МетроАрбатская
Параметры объекта
Этаж3
Этажность7
Площадь общая75
Основное
2010-03-22 13:58:58
Похожие объявления
Отдел коммерческой недвижимости
Скажите, что нашли эти контакты на сайте поиска
недвижимости КваддРу
недвижимости КваддРу
