Сдается офис в Москве, д 3 к 19
На карте
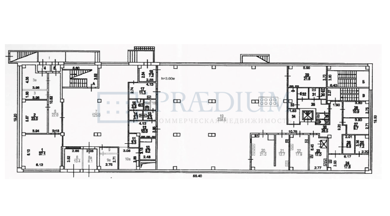
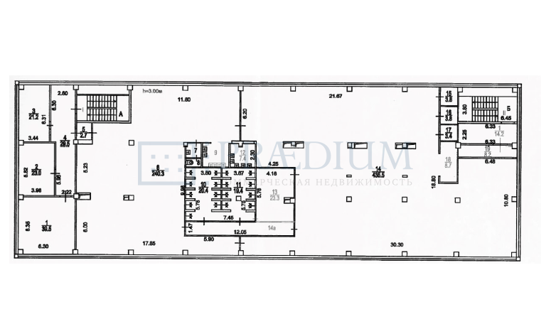
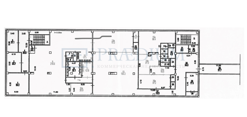
Об объекте
ID: o98266
Уважаемый Арендатор, предлагаем Вам арендовать 4939.8 м² на выгодных условиях.
Планировка - смешанная. Приточно-вытяжная вентиляция. Электрическая мощность: 250кВт. Интернет, телефония. Охрана. Видеонаблюдение. Система контроля доступа.
ЮАО Москвы. В 5 минутах от м. Пражская
Быстро реагируем на обращения, организуем встречу на объекте в удобное для Вас время, направим план помещения и ответим на все возникшие вопросы!
Звоните сейчас и получите лучшие условия на рынке!
13.09.2016 | 1
№128030
в месяц
Ставка аренды за м2 1 525 ₽
Местоположение
ГородМосква
МетроПражская
Параметры объекта
Этажность4
Площадь общая4940
Основное
2016-09-13 09:47:35
Похожие объявления
Отдел коммерческой недвижимости
Скажите, что нашли эти контакты на сайте поиска
недвижимости КваддРу
недвижимости КваддРу
