Сдается офис в Москве, д 26 стр 5
На карте
Об объекте
ID: L12889
Внимание арендаторов! Сдаем в аренду отдельный блок на 3 этаже с отделкой и качественной мебелью в деловом центре "Симонов Плаза".
Оперативно покажем помещение, ответим на возникшие вопросы. Направим подробную презентацию с планировками, фотографиями и коммерческими условиями.
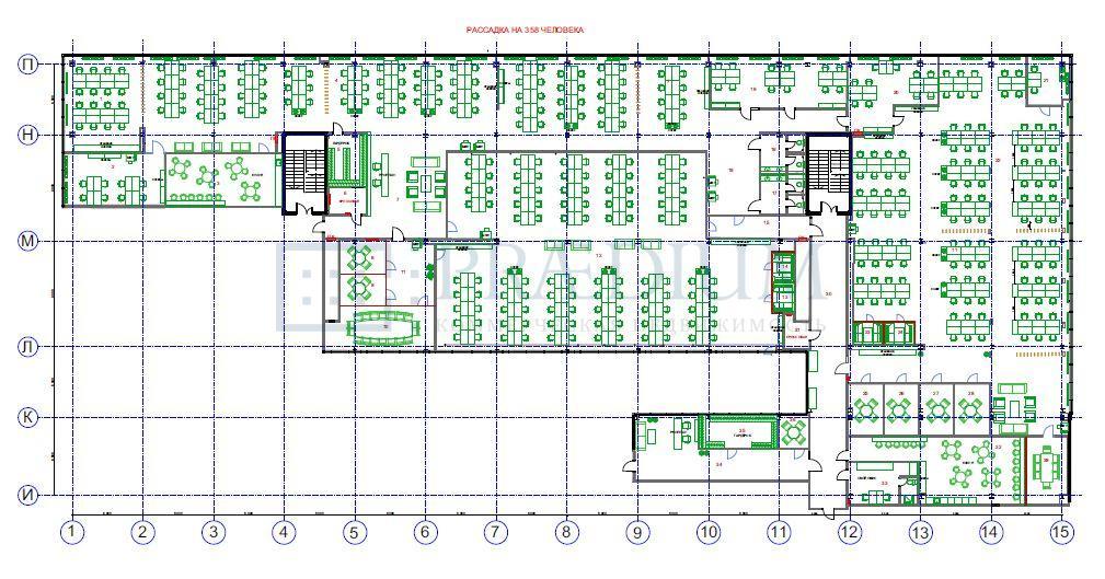
+ офис на 234 рабочих места (около 1500 кв.м.)
+ 3 этаж
+ панорамное остекление,
+ высокие потолки
+ открытая планировка
Офис полностью меблирован и готов к въезду в конце января 2026г, в помещении предусмотрен современный дизайн и смешанная планировка, сочетающая кабинеты руководства, пространства для отделов, переговорные комнаты, серверную, миникухни и кофепоинты, санузлы, архивы, принтер зоны, лаунж пространства, и теле-будки тд.
В аренду включено: мебель, административная поддержка, коммунальные платежи, интернет, копировальная техника и бумага, обслуживание кофепоинта, уборка и расходные материалы, озеленение и уход за растениями, эксплуатация и мелкий ремонт, система контроля доступа и видеонаблюдение.
Все коммерческие условия аренды или адаптация под арендатора обсуждаются индивидуально.
"Симонов Плаза" - новый современный бизнес-парк класса В+, расположенный в нескольких минутах ходьбы от м.Автозаводская. Инфраструктура бизнес-парка и современные дизайнерские и ландшафтные решения формируют комфортную среду для работы арендаторов.
По вашему запросу, мы направим Вам:
1. Презентацию с фотографиями и планировками, которую вышлем в течении 10 минут в Whatsapp/Telegram или на почту, чтобы Вы смогли обсудить с коллегами или передать руководству. Просто позвоните по телефону в объявлении и попросите менеджера прислать Вам всю информацию по объявлению.
2. Подборку предложений с аналогичными объектами, если Вам нужно предоставить несколько объектов для сравнения.
3. Устроим показ помещения в удобное для Вас время. Можем записать видео тур и отправить его в любой мессенджер или на почту.
Звоните нам в любое время для презентации помещений!
ПЛАТИМ КОМИССИЮ АГЕНТАМ - спросите КОКОН :)
19.09.2014 | 1
№128101
в месяц
Ставка аренды за м2 8 107 ₽
Местоположение
ГородМосква
МетроАвтозаводская
Параметры объекта
Этаж3
Этажность5
Площадь общая1500
Основное
2014-09-19 14:13:36
Похожие объявления
Отдел коммерческой недвижимости
Скажите, что нашли эти контакты на сайте поиска
недвижимости КваддРу
недвижимости КваддРу
