Сдается торговое помещение в Москве, д 11 к 1
На карте
Об объекте
ID: L5778
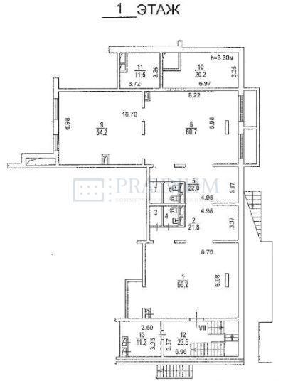
Аренда нежилого помещения 346,7 м2 в Жилом комплексе "СКАЙ ФОРД", бизнес класс. Застройщик - австрийская компания Strabag.
Помещение с отдельным входом, дополнительный выход под разгрузку.
Два уровня: 1 этаж - 290,3 м2, 2 этаж - 45,1 м2.
Состояние: под отделку и планировку.
Размер каникул обсуждается после просмотра.
Высота потолка на каждом уровне 3,30 метра.
Мощность 32 кВт.
Парковка на прилегающей территории комплекса.
Комплекс заселен, сложившиеся торговое окружение.
30.09.2015 | 1
№125089
в месяц
Ставка аренды за м2 1 998 ₽
Местоположение
ГородМосква
МетроНагатинская
Параметры объекта
Этаж1
Этажность33
Площадь общая347
Основное
2015-09-30 09:00:42
Похожие объявления
Отдел коммерческой недвижимости
Скажите, что нашли эти контакты на сайте поиска
недвижимости КваддРу
недвижимости КваддРу
