Сдается торговое помещение в Москве, д 8
На карте
Об объекте
ID: o79177
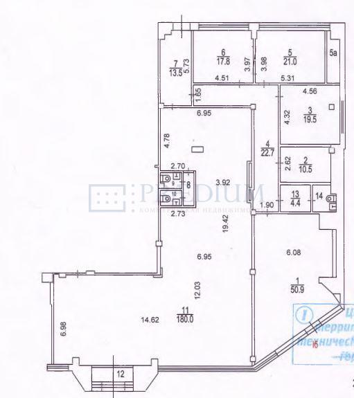
Уважаемый Арендатор, предлагаем Вам арендовать помещение свободного назначения 360.0 м² на 1 этаже на выгодных условиях.
Приточно-вытяжная вентиляция. Интернет, телефония. Охрана. Видеонаблюдение. Система контроля доступа. Отдельный вход.
ЦАО Москвы. В 3 минутах от м. Площадь Ильича
Быстро реагируем на обращения, организуем встречу на объекте в удобное для Вас время, направим план помещения и ответим на все возникшие вопросы!
Звоните сейчас и получите лучшие условия на рынке!
19.02.2015 | 1
№126926
в месяц
Ставка аренды за м2 4 167 ₽
Местоположение
ГородМосква
МетроПлощадь Ильича
Параметры объекта
Этаж1
Этажность10
Площадь общая360
Основное
2015-02-19 14:50:43
Похожие объявления
Отдел коммерческой недвижимости
Скажите, что нашли эти контакты на сайте поиска
недвижимости КваддРу
недвижимости КваддРу
