Сдается торговое помещение в Москве, д 19 стр 1
На карте
Об объекте
ID: o98446
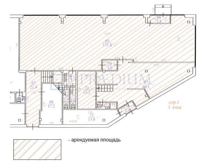
Уважаемый Арендатор, предлагаем Вам арендовать помещение свободного назначения 286.3 м² на 1 этаже на выгодных условиях.
Планировка - смешанная. Приточно-вытяжная вентиляция. Интернет, телефония. Охрана. Отдельный вход.
ЮАО Москвы. В 3 минутах от м. Автозаводская, Автозаводская МЦК
Быстро реагируем на обращения, организуем встречу на объекте в удобное для Вас время, направим план помещения и ответим на все возникшие вопросы!
Звоните сейчас и получите лучшие условия на рынке!
06.11.2015 | 1
№128182
в месяц
Ставка аренды за м2 3 253 ₽
Местоположение
ГородМосква
МетроАвтозаводская
Параметры объекта
Этаж1
Этажность3
Площадь общая286
Основное
2015-11-06 06:14:34
Похожие объявления
Отдел коммерческой недвижимости
Скажите, что нашли эти контакты на сайте поиска
недвижимости КваддРу
недвижимости КваддРу
