Сдается торговое помещение в Москве, 5,стр. 6,стр.1
На карте
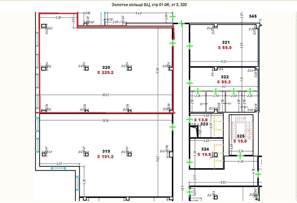
Об объекте
Сдается в аренду офисное помещение 229,2 квадратных метра расположенное на 3-м этаже пятиэтажного здания. Планировка включает в себя просторный зал свободной планировки и два отдельных кабинета. Высота потолков составляет 3 метра. Система кондиционирования воздуха отсутствует.
В ежемесячную арендную плату включены НДС и коммунальные услуги, за исключением электроэнергии, парковки, уборки арендуемой площади и вывоза мусора. Обеспечительный платеж в размере месячной арендной платы взимается в качестве гарантии. Предоставление юридического адреса временно невозможно.
Круглосуточный доступ в помещение обеспечен. Бизнес-центр "Золотое кольцо" удобно расположен в шаговой доступности от станций метро "Кожуховская" (7 минут пешком) и "Дубровка" (15 минут пешком). Инфраструктура бизнес-центра предлагает кафе, столовую, спортивный клуб и другие удобства для арендаторов.Помещение находится в управлении ООО «Управляющая компания „Помощь“». Комиссия за сделку не взимается.
В ежемесячную арендную плату включены НДС и коммунальные услуги, за исключением электроэнергии, парковки, уборки арендуемой площади и вывоза мусора. Обеспечительный платеж в размере месячной арендной платы взимается в качестве гарантии. Предоставление юридического адреса временно невозможно.
Круглосуточный доступ в помещение обеспечен. Бизнес-центр "Золотое кольцо" удобно расположен в шаговой доступности от станций метро "Кожуховская" (7 минут пешком) и "Дубровка" (15 минут пешком). Инфраструктура бизнес-центра предлагает кафе, столовую, спортивный клуб и другие удобства для арендаторов.Помещение находится в управлении ООО «Управляющая компания „Помощь“». Комиссия за сделку не взимается.
21.01.2026 | 1
№128949
в месяц
Ставка аренды за м2 1 333 ₽
Местоположение
ГородМосква
МетроКожуховская
Номер дома5,стр. 6,стр.1
Параметры объекта
Этаж3
Этажность4
Площадь общая229.2
Основное
2026-01-21 09:12:42
