Продам офис в Москве, д 8
На карте
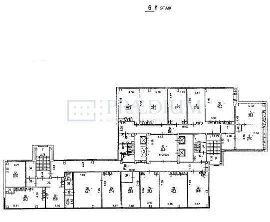
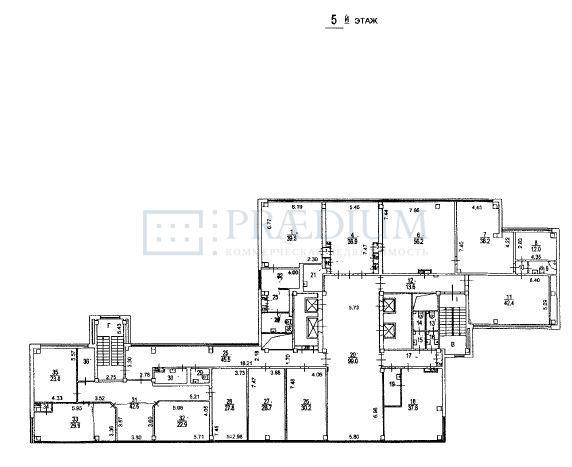
Об объекте
ID: L11629
Продажа административного офисного здания 9455 м2 в районе станции метро Тульская и Шаболовская.
o 8 этажей, включая подземный этаж
o Класс В
o Отдельно стоящее здание, ОСЗ, бизнес центр
o Смешанная планировка
o Конференц-зал, общие зоны
o Стандартная офисная отделка
o Площадь каждого этажа, примерно 750 м2
o Площадь подвала 1100 м2
o Высота потолков 3,5 м
o Пассажирские лифты, грузовой лифт
o Узнаваемая локация
o Собственная огороженная территория
o Земельный участок в долгосрочной аренде
o Площадь земельного участка 3875 м2
o Ближайшие станции метро Тульская, 7 – 9 минут пешком
o В шаговой доступности вся необходимая инфраструктура
o Все коммуникации центральные
o Современные инженерные системы
o Круглосуточная охрана и видеонаблюдение
o Наземная парковка на 40 м/м
Здание расположено в Даниловском районе. Общая площадь здания 9455 м2. Год постройки 1977.
Заинтересованы в аренде или покупке коммерческой недвижимости, записывайтесь на индивидуальный просмотр. Звоните!
19.10.2016 | 1
№125282
Цена за м2 232 259 ₽
Местоположение
ГородМосква
МетроТульская
Параметры объекта
Этажность8
Площадь общая9455
Основное
2016-10-19 13:16:03
Похожие объявления
Отдел коммерческой недвижимости
Скажите, что нашли эти контакты на сайте поиска
недвижимости КваддРу
недвижимости КваддРу
