Главная Коммерческая Продажа Офисы Объект №126597
Продам офис в Москве, Очаковское шоссе, д 34
На карте
Инфраструктура Панорама
Инфраструктура
Школы
Детские сады
Поликлиники
Продуктовые магазины
Кафе
Об объекте
ID: o95296
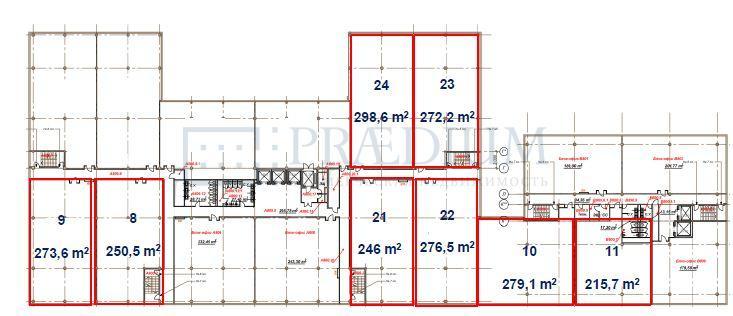
Уважаемый Покупатель, предлагаем Вам приобрести в БЦ "Бизнес-центр "West Park"" ("Западный Парк / Вест Парк") офис 279.1 м² на 8 этаже в собственность на выгодных условиях.
Приточно-вытяжная вентиляция. Центральное кондиционирование. Электрическая мощность: 60Вт/м². Интернет, телефония. Охрана. Видеонаблюдение. Система контроля доступа. Лифты: LG. Наземная парковка.
ЗАО Москвы. В 10 минутах от м. Славянский бульвар, Озерная
Быстро реагируем на обращения, организуем встречу на объекте в удобное для Вас время, направим план помещения и ответим на все возникшие вопросы!
Звоните сейчас и получите лучшие условия на рынке!
20.07.2011 | 1
№126597
Цена за м2 192 069 ₽
Местоположение
ГородМосква
МетроСлавянский бульвар
УлицаОчаковское шоссе
Параметры объекта
Этаж8
Этажность8
Площадь общая279
Основное
2011-07-20 09:32:35
Похожие объявления
По цене По местоположению По цене и местоположению
Другие объявления по Очаковское шоссе
Отдел коммерческой недвижимости
Скажите, что нашли эти контакты на сайте поиска
недвижимости КваддРу
недвижимости КваддРу
