Продам офис в Москве, д 17Б
На карте
Об объекте
ID: o45233
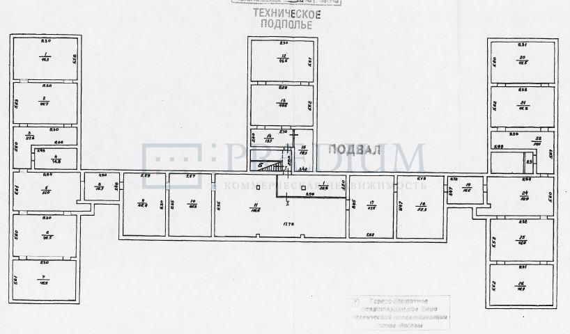
Уважаемый Покупатель, предлагаем Вам приобрести 2820.2 м² в собственность на выгодных условиях.
Планировка - смешанная. Приточно-вытяжная вентиляция. Центральное кондиционирование. Интернет, телефония. Охрана.
СВАО Москвы. В 5 минутах от м. Бибирево
Быстро реагируем на обращения, организуем встречу на объекте в удобное для Вас время, направим план помещения и ответим на все возникшие вопросы!
Звоните сейчас и получите лучшие условия на рынке!
12.09.2016 | 1
№126634
Цена за м2 90 426 ₽
Местоположение
ГородМосква
МетроБибирево
Параметры объекта
Этажность2
Площадь общая2820
Основное
2016-09-12 10:50:54
Похожие объявления
Отдел коммерческой недвижимости
Скажите, что нашли эти контакты на сайте поиска
недвижимости КваддРу
недвижимости КваддРу
