Продам офис в Москве, д 6 стр 1
На карте
Об объекте
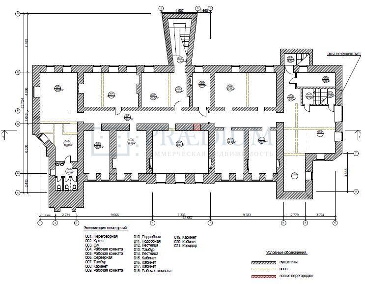
Уважаемый Покупатель, предлагаем Вам приобрести 963.3 м² в собственность на выгодных условиях.
Планировка - смешанная. Приточно-вытяжная вентиляция. Интернет, телефония. Охрана. Видеонаблюдение. Система контроля доступа. Наземная парковка.
ЦАО Москвы. В 10 минутах от м. Смоленская
Быстро реагируем на обращения, организуем встречу на объекте в удобное для Вас время, направим план помещения и ответим на все возникшие вопросы!
Звоните сейчас и получите лучшие условия на рынке!
ID: o70069
27.07.2010 | 1
№129653
Цена за м2 1 013 500 ₽
Местоположение
ГородМосква
МетроСмоленская
Параметры объекта
Этажность2
Площадь общая963
Основное
2010-07-27 14:50:27
Похожие объявления
Отдел коммерческой недвижимости
Скажите, что нашли эти контакты на сайте поиска
недвижимости КваддРу
недвижимости КваддРу
