Продам торговое помещение в Москве, влд 17 стр 16
На карте
Об объекте
ID: L11367
Приобретайте выгодно расположенное отдельно стоящее здание площадью 696 м2 в оживленном центральном районе Москвы возле станции метро Тульская.
Располагаясь на пересечении популярных транспортных маршрутов, он обладает отличной доступностью и привлекает значительное количество потенциальных покупателей и арендаторов.
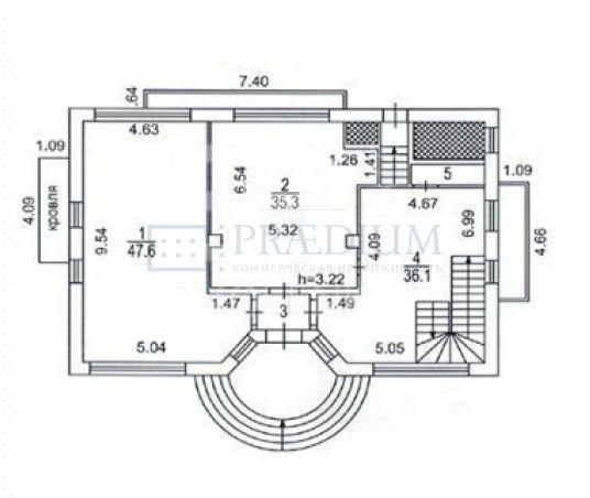
Здание построено по современной технологии и разделено на четыре этажа плюс цокольный уровень.
Оно оборудовано всеми необходимыми инженерными сетями: водоснабжение, водоотведение, вентиляция и качественная внутренняя отделка в стиле лофт.
Обеспечивается круглосуточная охрана и видеонаблюдение, имеются отдельные входы и удобные зоны разгрузки-погрузки.
Здесь размещаются успешные арендаторы: известный ресторан с открытой террасой летом, популярнейшая сеть кальянных, стильный салон красоты и комфортабельные офисные помещения.
Благодаря привлекательному местоположению рядом с крупным торговым центром и популярным рынком, объект характеризуется постоянной востребованностью и гарантирует быструю окупаемость вложений примерно за десять лет.
Для уточнения параметров аренды или продажи, и записи на индивидуальный просмотр, звоните!
30.05.2013 | 1
№124721
Цена за м2 402 299 ₽
Местоположение
ГородМосква
МетроТульская
Параметры объекта
Этажность4
Площадь общая696
Основное
2013-05-30 11:20:01
Похожие объявления
Отдел коммерческой недвижимости
Скажите, что нашли эти контакты на сайте поиска
недвижимости КваддРу
недвижимости КваддРу
