Продам торговое помещение в Москве, д 1 к 6
На карте
Об объекте
ID: L8656
Готовый арендный поток на ул. Харьковская.
Торговое помещение встроено-пристроено к 16-ти этажному ж/д, 1978 г.п.
Помещение располагается в центре жилого массива.
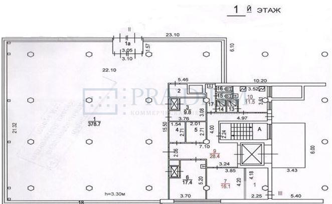
Общая площадь помещения –1011,7кв.м, в том числе:
1 этаж –505 кв.м, подвал –505 кв.м
Три отдельных входа
Витрины по фасаду 1-ого этажа
Высота потолка: 2,60 –3,10 метра
Мощность 90 ква (380/220 v)
Приточно-вытяжная вентиляция, кондиционирование
Центральные коммуникации
Парковка перед зданием.
Все площади сданы в аренду.
Якорный арендатор «Пятерочка», ДДА до 2027 года
Краткосрочные договора: Wildberries, салон красоты, соляная пещера, прачечная.
09.02.2018 | 2
№124942
Цена за м2 167 951 ₽
Местоположение
ГородМосква
МетроАннино
Параметры объекта
Этажность1
Площадь общая1012
Основное
2018-02-09 13:19:02
Похожие объявления
Отдел коммерческой недвижимости
Скажите, что нашли эти контакты на сайте поиска
недвижимости КваддРу
недвижимости КваддРу
