Продам торговое помещение в Москве, Шмитовский проезд, д 3 стр 1
На карте
Об объекте
ID: o53652
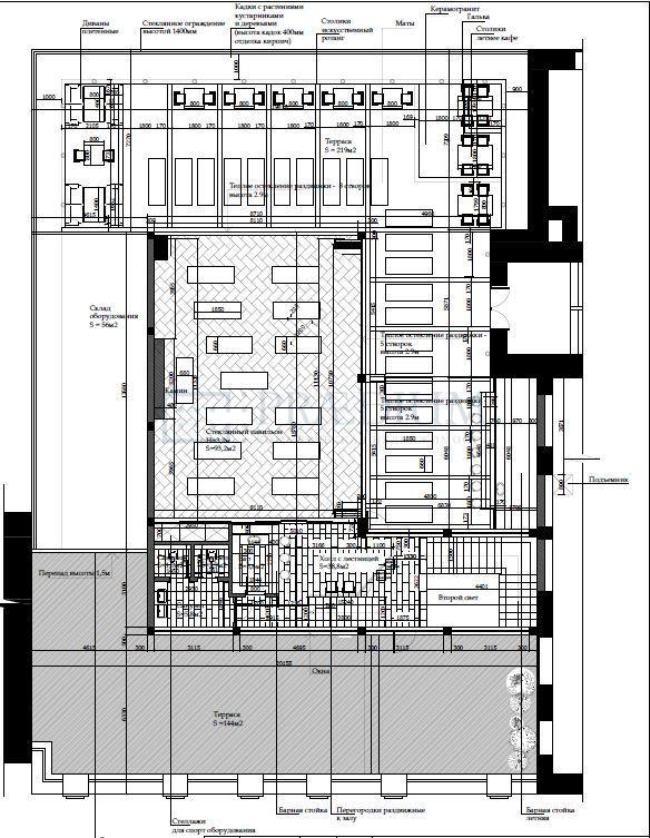
Уважаемый Покупатель, предлагаем Вам приобрести помещение свободного назначения 1150.0 м² на 1 этаже в собственность на выгодных условиях.
Электрическая мощность: 400кВт. Интернет, телефония. Охрана. Отдельный вход.
ЦАО Москвы. В 10 минутах от м. Улица 1905 года
Быстро реагируем на обращения, организуем встречу на объекте в удобное для Вас время, направим план помещения и ответим на все возникшие вопросы!
Звоните сейчас и получите лучшие условия на рынке!
15.04.2013 | 1
№126878
Цена за м2 8 696 ₽
Местоположение
ГородМосква
МетроУлица 1905 года
УлицаШмитовский проезд
Параметры объекта
Этаж1
Этажность4
Площадь общая1150
Основное
2013-04-15 08:43:24
Похожие объявления
Другие объявления по Шмитовский проезд
Отдел коммерческой недвижимости
Скажите, что нашли эти контакты на сайте поиска
недвижимости КваддРу
недвижимости КваддРу
