Продам торговое помещение в, д 24 стр 2
На карте
Об объекте
ID: o98809
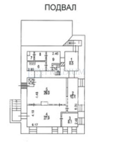
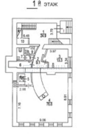
Уважаемый Покупатель, предлагаем Вам приобрести 505.0 м² в собственность на выгодных условиях.
С мебелью. Приточно-вытяжная вентиляция. Пожарная сигнализация. Электрическая мощность: 100. Интернет, телефония. Видеонаблюдение. Система контроля доступа.
В 5 минутах от м. Павелецкая, Новокузнецкая, Третьяковская
Быстро реагируем на обращения, организуем встречу на объекте в удобное для Вас время, направим план помещения и ответим на все возникшие вопросы!
Звоните сейчас и получите лучшие условия на рынке!
16.01.2026 | 1
№128851
Цена за м2 435 644 ₽
Местоположение
МетроПавелецкая
Параметры объекта
Этажность3
Площадь общая505
Основное
2026-01-16 10:16:51
Похожие объявления
Отдел коммерческой недвижимости
Скажите, что нашли эти контакты на сайте поиска
недвижимости КваддРу
недвижимости КваддРу
