Главная Коммерческая Аренда Офисы Объект №125912
Сдается офис в Москве, д 11
На карте
Инфраструктура Панорама
Инфраструктура
Школы
Детские сады
Поликлиники
Продуктовые магазины
Кафе
Об объекте
ID: L11615
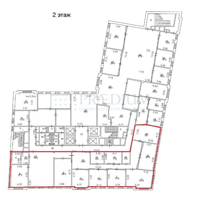
Аренда престижного офиса 451,3 м2 в районе станции метро Кропоткинская и Арбатская.
o 2 этаж,
o Класс А
o Кабинетная планировка
o Качественная офисная отделка
o Вид из окон на Гоголевский бульвар
o Историческая и узнаваемая локация
o Бизнес центр Гоголевский
o Ближайшие станции метро Кропоткинская, 2 - 3 минуты пешком, и Арбатская, 8 минут пешком
o Пассажирские лифты
o В шаговой доступности вся необходимая инфраструктура
o Современные инженерные системы
o Круглосуточная охрана и видеонаблюдение
o Подземная парковка
Здание расположено в районе Хамовники. Общая площадь здания 9985 м2. Год постройки 1912.
Для уточнения параметров аренды или продажи, и записи на индивидуальный просмотр, звоните!
02.04.2010 | 1
№125912
в месяц
Ставка аренды за м2 6 935 ₽
Местоположение
ГородМосква
МетроКропоткинская
Параметры объекта
Этаж2
Этажность8
Площадь общая451
Основное
2010-04-02 13:30:53
Отдел коммерческой недвижимости
Скажите, что нашли эти контакты на сайте поиска
недвижимости КваддРу
недвижимости КваддРу
