Главная Коммерческая Аренда Офисы Объект №125914
Сдается офис в Москве, д 11
На карте
Инфраструктура Панорама
Инфраструктура
Школы
Детские сады
Поликлиники
Продуктовые магазины
Кафе
Об объекте
ID: L12032
Уважаемые арендаторы! Если вы ищите качественный офис в самом центре Москвы то это сообщение для ВАС!
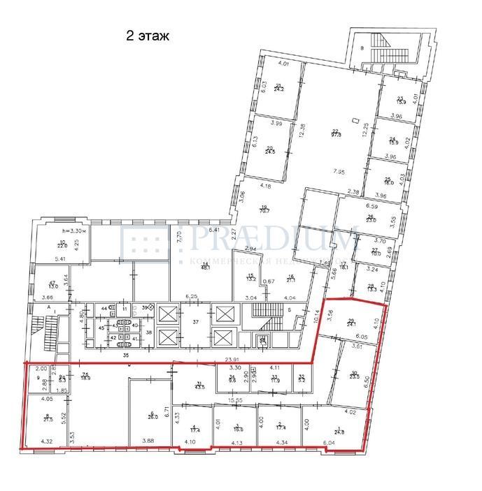
У нас открыта офисная вакансия - 451 кв.м. "Гоголевский 11" - одно из лучших офисных зданий Москвы, как по расположению - всего в 3 мин от м.Кропоткинская и в 10 мин от Кремля, так и по качеству отделки, инженерным системам, уровню эксплуации и управления.
Смешанная планировка офиса позволит комфортно разместить 25-30 человек - блок руководства, кабинеты сотрудников, переговорная, миникухня. Окна офиса выходят на Гоголевский бульвар и Храм Христа Спасителя!
Приглашаем стать резидентом здания На Гоголевском 11. Звоните и приезжайте на просмотр!
02.04.2010 | 1
№125914
в месяц
Ставка аренды за м2 6 935 ₽
Местоположение
ГородМосква
МетроКропоткинская
Параметры объекта
Этаж2
Этажность8
Площадь общая451
Основное
2010-04-02 13:30:53
Отдел коммерческой недвижимости
Скажите, что нашли эти контакты на сайте поиска
недвижимости КваддРу
недвижимости КваддРу
