Главная Коммерческая Аренда Офисы Объект №126068
Сдается офис в Москве, д 5
На карте
Инфраструктура Панорама
Инфраструктура
Школы
Детские сады
Поликлиники
Продуктовые магазины
Кафе
Об объекте
ID: L12326
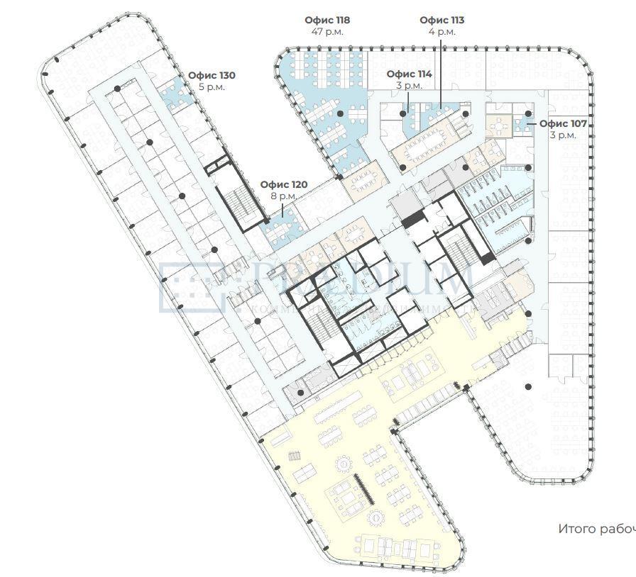
Аренда сервисного офиса на 47 рабочих мест в бизнес-центре «Белая Площадь»
Готовность к работе: офис полностью оборудован и готов к въезду.
Комфорт сотрудников: современные рабочие места, зоны отдыха, переговорные комнаты.
Сервис: ежедневная уборка, обеспечение бумагой и канцтоварами, обслуживанием ИТ и техникой.
Категории А: качественное состояние помещения, хорошие инженерные системы.
Микроклимат: современная вентиляция и кондиционирование.
Безопасность: круглосуточная охрана и видеонаблюдение.
Инфраструктуру: удобная планировка, просторный ресепшн, зона отдыха, кухня.
Место нахождения: Москва, ЦАО, Лесная улица, 5сБ — легко добираться от разных районов города.
26.08.2010 | 1
№126068
в месяц
Ставка аренды за м2 13 000 ₽
Местоположение
ГородМосква
МетроБелорусская
Параметры объекта
Этаж6
Этажность15
Площадь общая282
Основное
2010-08-26 12:49:49
Похожие объявления
По цене По местоположению По цене и местоположению
Отдел коммерческой недвижимости
Скажите, что нашли эти контакты на сайте поиска
недвижимости КваддРу
недвижимости КваддРу
