Сдается офис в Москве, д 26
На карте
Об объекте
ID: o97226
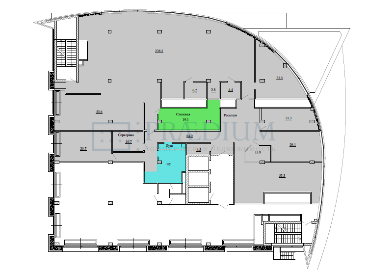
Уважаемый Арендатор, предлагаем Вам арендовать в БЦ "Снежная 26" офис 618.0 м² на 6 этаже на выгодных условиях.
Планировка - смешанная. Приточно-вытяжная вентиляция. Центральное кондиционирование. Пожарная сигнализация. Электрическая мощность: 70Вт/м². Интернет, телефония. Охрана. Видеонаблюдение. Система контроля доступа. Лифты: KONE. Подземная парковка.
СВАО Москвы. В 3 минутах от м. Свиблово
Быстро реагируем на обращения, организуем встречу на объекте в удобное для Вас время, направим план помещения и ответим на все возникшие вопросы!
Звоните сейчас и получите лучшие условия на рынке!
21.01.2013 | 1
№126705
в месяц
Ставка аренды за м2 3 000 ₽
Местоположение
ГородМосква
МетроСвиблово
Параметры объекта
Этаж6
Этажность14
Площадь общая618
Основное
2013-01-21 07:30:01
Похожие объявления
Отдел коммерческой недвижимости
Скажите, что нашли эти контакты на сайте поиска
недвижимости КваддРу
недвижимости КваддРу
