Главная Коммерческая Аренда Офисы Объект №127876
Сдается офис в Москве, д 15А
На карте
Инфраструктура Панорама
Инфраструктура
Школы
Детские сады
Поликлиники
Продуктовые магазины
Кафе
Об объекте
ID: L12835
Бизнес-центр класса А "Централ Парк Тауэр":
Адрес: Москва, Ленинский проспект, дом 15А.
Основные характеристики:
Количество рабочих мест: от 35 до 61 (*ориентировочное значение).
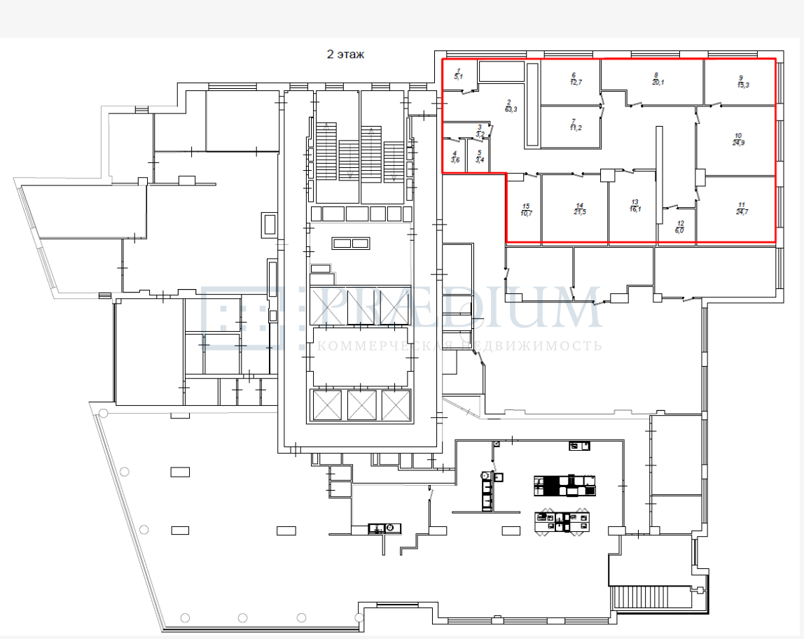
Общая площадь помещения: 276 квадратных метров.
Планировка помещений: свободная / смешанная.
Текущее состояние: готов к эксплуатации ("под ключ").
Инженерные коммуникации: установлены и подключены.
Система охраны: круглосуточная профессиональная охрана всего здания.
Дополнительные удобства:
Этаж расположения: второй этаж из двадцати двух этажей.
Форма договора аренды: прямой договор аренды непосредственно с владельцем.
Подземная парковка доступна для арендаторов.
15.04.2010 | 1
№127876
в месяц
Ставка аренды за м2 8 291 ₽
Местоположение
ГородМосква
МетроШаболовская
Параметры объекта
Этаж2
Этажность22
Площадь общая276
Основное
2010-04-15 12:39:52
Похожие объявления
По цене По местоположению По цене и местоположению
Отдел коммерческой недвижимости
Скажите, что нашли эти контакты на сайте поиска
недвижимости КваддРу
недвижимости КваддРу
