Сдается офис в Москве, д 26
На карте
Об объекте
ID: L12869
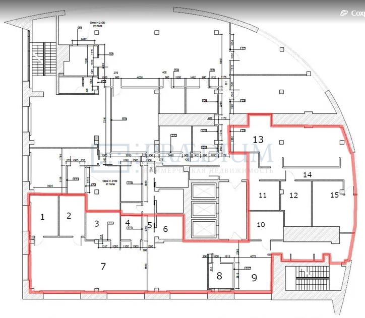
Предлагаем вашему вниманию предложение по аренде офиса площадью 363 кв.м на престижном 10-м этаже бизнес-центра класса А «Снежная 26».
Преимуществом нашего предложения являются комфортные условия размещения вашего бизнеса в одном из наиболее привлекательных районов СВАО Москвы. Просторная площадь позволит эффективно организовать рабочее пространство сотрудников, обеспечивая удобство и продуктивность труда.
Вашему бизнесу будут предоставлены современные инженерные решения:
Смешанная удобная планировка пространства;
Качественное приточно-вытяжное вентилирование и центральное кондиционирование воздуха;
Современная пожарная сигнализация и система видеонаблюдения;
Безопасность обеспечат охрана и надежная система контроля доступа;
Электропитание мощностью 70 Вт на квадратный метр обеспечит комфортное использование оборудования;
Высокоскоростной доступ к сети Интернет и качественной телефонной связи;
Удобные лифты производства известной финской фирмы KONE доставят вас прямо на Обеспеченная подземная парковка защитит ваш автомобиль от непогоды и создаст удобства для деловых встреч.
21.01.2013 | 1
№128011
в месяц
Ставка аренды за м2 3 000 ₽
Местоположение
ГородМосква
МетроСвиблово
Параметры объекта
Этаж10
Этажность14
Площадь общая363
Основное
2013-01-21 07:30:01
Похожие объявления
Отдел коммерческой недвижимости
Скажите, что нашли эти контакты на сайте поиска
недвижимости КваддРу
недвижимости КваддРу
