Сдается офис в Москве, дом 2,стр.1
На карте
Об объекте
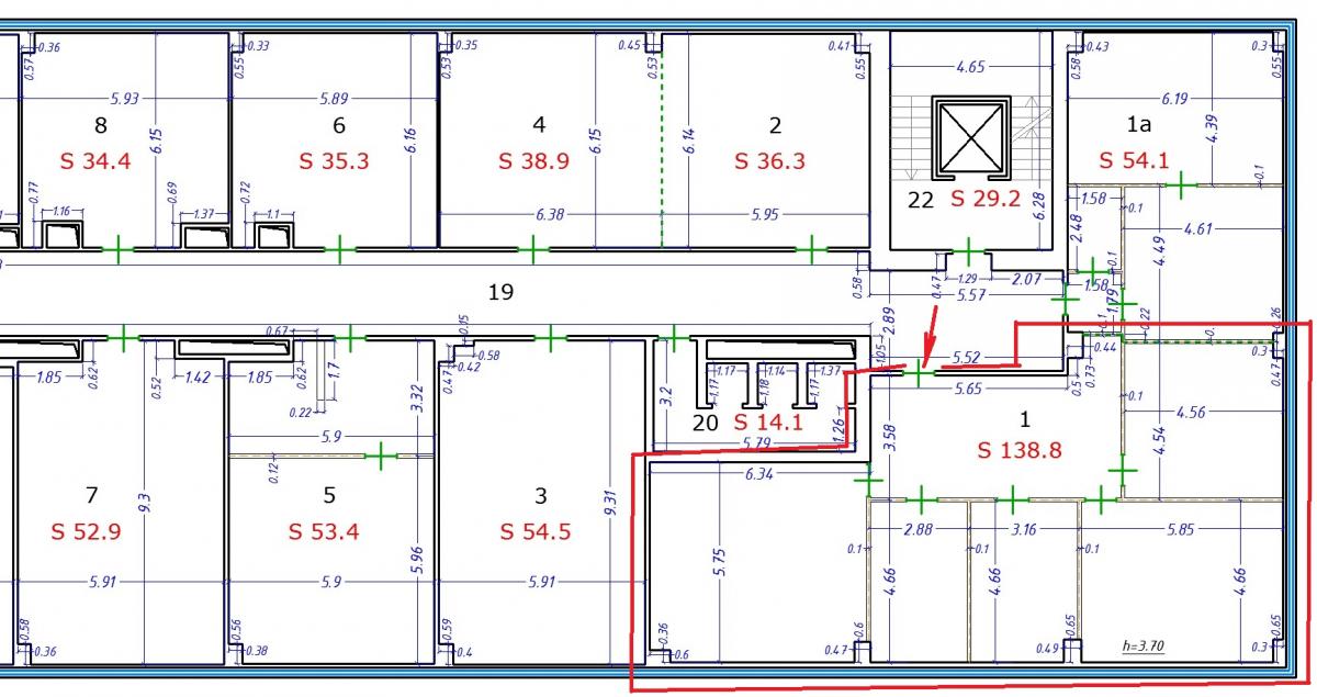
Предлагаем в аренду помещение под офис на 5-м этаже 6-ти этажного главного корпуса БЦ "Красный богатырь" общей площадью 138,8 м2. Планировка: приемная + 5 комнат, сан узел общий на этаже. Лифт имеется. Высота потолков - 3,7 м. Помещение с ремонтом, готово к въезду. Кондиционирование имеется. Круглосуточный свободный (!) доступ в помещение, имеется круглосуточная наземная парковка (платно). Ставка аренды в месяц: 173 500 рублей вкл. НДС. Отдельно оплачивается электричество, парковка при необходимости, уборки внутри блока и вывоза мусора. Обеспечительный взнос 1 месяц аренды, оплата аренды помесячно. Юридический адрес временно не предоставляется. Бизнес – центр «Красный Богатырь» находится в транспортной доступности от станций метро «Преображенская площадь» (10 мин. транспортом) или м. Бульвар Рокоссовского (15 мин. транспортом). На территории находятся кафе и рестораны, фитнес-клуб с бассейном, терминалы оплаты связи и многое другое, что делает бизнес-центр максимально удобным и комфортным для арендаторов.
23.12.2025 | 1
№128388
в месяц
Ставка аренды за м2 1 354 ₽
Местоположение
ГородМосква
МетроПреображенская площадь
Параметры объекта
Этаж5
Этажность6
Площадь общая138.8
Основное
2025-12-23 15:39:15
