Сдается торговое помещение в Москве, д 11 к 2
На карте
Об объекте
ID: L10986
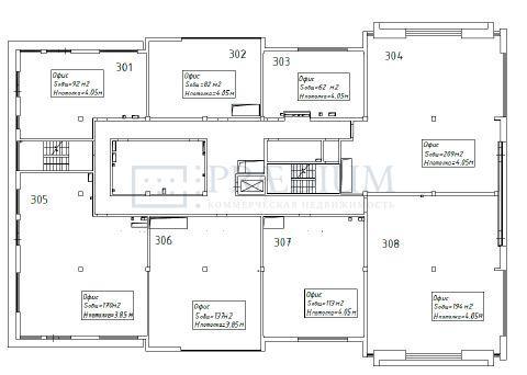
Аренда помещения свободного назначения 1332 м2 в пространстве Деловой квартал Юпорт в районе метро Технопарк.
o 3 этаж
o Класс В+
o Помещение без отделки
o Свободная функциональная планировка
o Высокие потолки
o Идеально подходит под культурные объекты, выставки и галереи
o Арендные каникулы обсуждаются индивидуально
o Бизнес центр Юпорт
o Ближайшие станции метро Технопарк и Коломенская, примерно 8 - 10 минут пешком
o Современные инженерные системы
o Круглосуточный доступ, контроль доступа
o Круглосуточная охрана и видеонаблюдение
o Наземная парковка
Деловой квартал Юпорт состоит из 7 корпусов и расположен в Нагатинском затоне на берегу Москвы реки. Год постройки 2024.
Заинтересованы в аренде или покупке коммерческой недвижимости! Записывайтесь на индивидуальный просмотр, профессиональное сопровождение и консультацию.
Звоните!
23.04.2024 | 1
№125837
в месяц
Ставка аренды за м2 2 542 ₽
Местоположение
ГородМосква
МетроТехнопарк
Параметры объекта
Этаж3
Этажность3
Площадь общая1332
Основное
2024-04-23 08:43:47
Похожие объявления
Отдел коммерческой недвижимости
Скажите, что нашли эти контакты на сайте поиска
недвижимости КваддРу
недвижимости КваддРу
