Сдается торговое помещение в Москве, д 11 к 2
На карте
Об объекте
ID: L12921
Предлагаем вашему вниманию эксклюзивные офисные пространства и помещения для разных направлений вашего бизнеса в активно развивающемся районе м. Технопарк. Не упустите возможность арендовать пространство для своего бизнеса по низким ставкам.
Общественно деловое пространство в самом престижном районе Южного округа Москвы, окруженного с трех сторон излучиной Москвы-реки. Малоэтажная застройка бизнес класса на легендарной набережной, с видом на реку и Южный ландшафтный парк «Остров мечты».
Относительно автомобильного потока, здания расположены на 1- й линии проспекта Андропова. Деловой квартал «ЮПОРТ» представляет из себя галерею трехэтажных отдельностоящих зданий в цепочке с Южным речным вокзалом.
Престижная локация, стильные фасады, функциональная планировка, витражное остекление–делают рабочее пространство выгодно привлекательным для размещения любого бизнеса.
Уникальная локация: близко к центру Москвы, в пешей доступности до ст. м. Технопарк, недалеко от ст. м. Тульская, Автозаводская, ЗИЛ. Локация облегчает логистику для резидентов, обеспечивает быструю связь с различными частями Москвы.
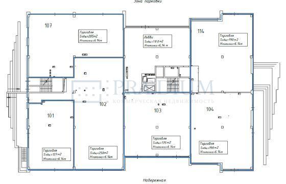
Планировка: помещения сдаются в состоянии Shell & Core, также может быть выполнена отделка и перепланировка под цели арендатора. Предоставляем арендные каникулы.
Подведена приточно-вытяжная вентиляция, все коммуникации. Охрана и видеонаблюдение по внешнему контуру.
Парковка: на территории предусмотрен наземный паркинг для резидентов.
Налоговая: 7725.
Тип налогообложения: С НДС
В арендную плату включен НДС, эксплуатация инженерных систем и мест общего пользования Коммунальные платежи, интернет, клининг оплачиваются отдельно.
Долгосрочная аренда.
Описание: Отдельный офис, ПСН, здание в аренду м. Технопарк.
Пишите, звоните, быстро организуем показ, сопроводим сделку.
23.04.2024 | 1
№128094
в месяц
Ставка аренды за м2 3 558 ₽
Местоположение
ГородМосква
МетроТехнопарк
Параметры объекта
Этаж1
Этажность3
Площадь общая1137
Основное
2024-04-23 08:47:47
Похожие объявления
Отдел коммерческой недвижимости
Скажите, что нашли эти контакты на сайте поиска
недвижимости КваддРу
недвижимости КваддРу
