Сдается торговое помещение в Москве, д 11 к 2
На карте
Об объекте
ID: L12781
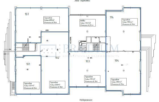
Аренда офиса или помещения свободного назначения 250 м2 в пространстве Деловой квартал Юпорт в районе метро Технопарк.
o 1 этаж
o Класс В+
o Помещение без отделки
o Свободная функциональная планировка
o Высокие потолки
o Арендные каникулы обсуждаются индивидуально
o Бизнес центр Юпорт
o Ближайшие станции метро Технопарк и Коломенская, примерно 8 - 10 минут пешком
o Современные инженерные системы
o Круглосуточный доступ, контроль доступа
o Круглосуточная охрана и видеонаблюдение
o Наземная парковка
Деловой квартал Юпорт состоит из 7 корпусов и расположен в Нагатинском затоне на берегу Москвы реки. Год постройки 2024.
Заинтересованы в аренде или покупке коммерческой недвижимости! Записывайтесь на индивидуальный просмотр, профессиональное сопровождение и консультацию.
Звоните!
23.04.2024 | 1
№125992
в месяц
Ставка аренды за м2 3 500 ₽
Местоположение
ГородМосква
МетроТехнопарк
Параметры объекта
Этаж1
Этажность3
Площадь общая250
Основное
2024-04-23 08:47:47
Похожие объявления
Отдел коммерческой недвижимости
Скажите, что нашли эти контакты на сайте поиска
недвижимости КваддРу
недвижимости КваддРу
