Сдается торговое помещение в Москве, д 80
На карте
Об объекте
ID: L12961
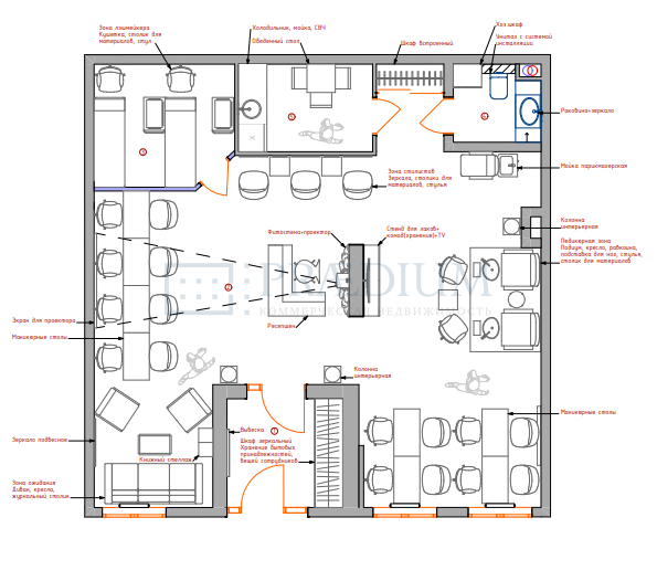
Аренда помещения свободного назначения в ЖК Садовническая 80.
1 этаж с отдельным входом 85,8 кв.м
Большие окна по фасаду.
Состояние: дизайнерская отделка
Смешанная планировка, мокрые зоны.
Высота потолка 4,20 метра
Приточно-вытяжная вентиляция, кондиционирование.
Система пожаротушения, видеонаблюдение.
Парковка городская.
Арендная плата + 5% НДС.
07.08.2019 | 1
№128175
в месяц
Ставка аренды за м2 5 814 ₽
Местоположение
ГородМосква
МетроПавелецкая
Параметры объекта
Этаж1
Этажность6
Площадь общая86
Основное
2019-08-07 13:51:21
Похожие объявления
Отдел коммерческой недвижимости
Скажите, что нашли эти контакты на сайте поиска
недвижимости КваддРу
недвижимости КваддРу
