Сдается торговое помещение в Москве, д 4/7 стр 2
На карте
Об объекте
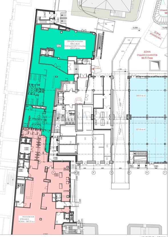
Уважаемый Арендатор, предлагаем Вам арендовать в БЦ "Моховая I" помещение свободного назначения 479.7 м² на 1 этаже на выгодных условиях.
Приточно-вытяжная вентиляция. Центральное кондиционирование. Пожарная сигнализация. Интернет, телефония. Охрана. Видеонаблюдение. Система контроля доступа. Лифты: 5, Kone. Подземная парковка.
ЦАО Москвы. В 5 минутах от м. Библиотека имени Ленина, Александровский сад, Боровицкая
Быстро реагируем на обращения, организуем встречу на объекте в удобное для Вас время, направим план помещения и ответим на все возникшие вопросы!
Звоните сейчас и получите лучшие условия на рынке!
ID: o99281
03.03.2011 | 1
№129512
в месяц
Ставка аренды за м2 6 807 ₽
Местоположение
ГородМосква
МетроБиблиотека имени Ленина
Параметры объекта
Этаж1
Этажность8
Площадь общая480
Основное
2011-03-03 13:08:52
Похожие объявления
Отдел коммерческой недвижимости
Скажите, что нашли эти контакты на сайте поиска
недвижимости КваддРу
недвижимости КваддРу
