Главная Коммерческая Продажа Офисы Объект №124680
Продам офис в Москве, д 12
На карте
Инфраструктура Панорама
Инфраструктура
Школы
Детские сады
Поликлиники
Продуктовые магазины
Кафе
Об объекте
ID: L9707
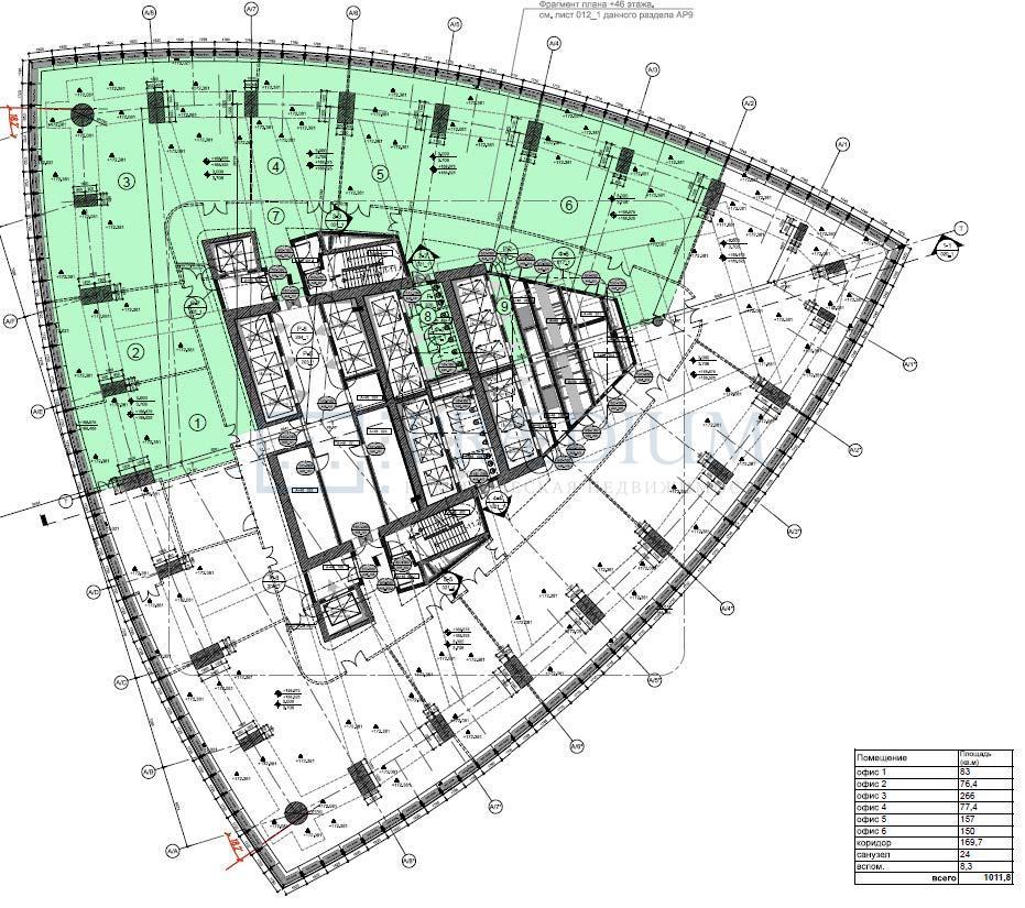
Продается офисное помещение площадью 1036 м² на 46 этаже башни Федерации Восток, расположенной по адресу: Пресненская набережная, дом 12.
Планировка открытая, что позволяет легко организовать кабинеты по вашему усмотрению. Предусмотрена возможность подключения мокрых точек.
С этого этажа открываются потрясающие виды на реку, и никакие строительные работы не смогут закрыть эту панораму. Высота потолков составляет 4 метра, а глубина офисного пространства достигает 12 метров.
Башня Федерации — это один из самых современных небоскребов в Москва-Сити, оборудованный технологичными sky-офисами. Офис на 46 этаже — это идеальное решение для размещения крупной компании, предлагающее впечатляющие виды на городские шпили, гостиницу «Украина» и Москву-реку.
Мы открыты для обсуждения встречных предложений и готовы к переговорам. Объект без обременений, что гарантирует быстрый выход на сделку! Не стесняйтесь добавлять в избранное и звонить — с радостью ответим на все ваши вопросы.
03.05.2011 | 1
№124680
Цена за м2 700 000 ₽
Местоположение
ГородМосква
МетроВыставочная
Параметры объекта
Этаж46
Этажность101
Площадь общая1036
Основное
2011-05-03 11:31:41
Отдел коммерческой недвижимости
Скажите, что нашли эти контакты на сайте поиска
недвижимости КваддРу
недвижимости КваддРу
