Продам офис в Москве, д 14/16 стр 1
На карте
Об объекте
ID: L7984
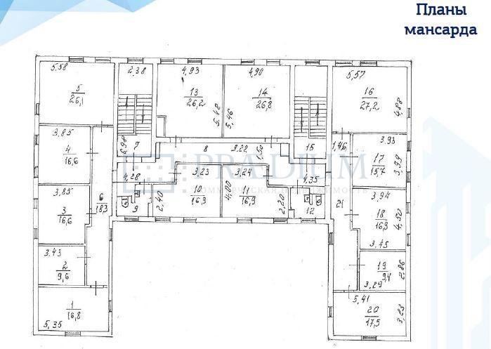
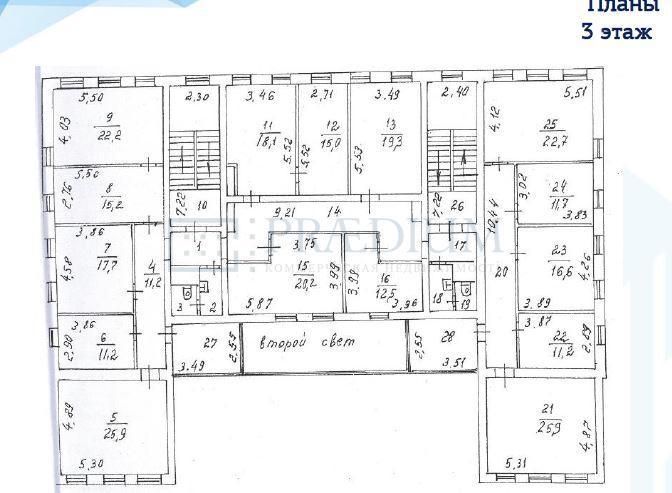
Продается офисный 4х-этажный представительский особняк площадью 1735,9 кв.м. на огороженной территории, в 3 минутах от м.Марксистская, Таганская.
Выполнена современная отделка и кабинетная планировка,
VIP блок руководства с удобствами и зимним садом,
Переговорные комнаты
Собственная кухня полного цикла и столовая для сотрудников и отдельная обеденная для руководства.
Здание оснащено центральной системой кондиционирования, вентиляции, ГВС, ХВС, центральное отопление, оборудовано профессиональной серверным пунктом и кроссовой.
Парковка на 25 машиномест.
Продажа недвижимости, долгосрочная аренда земельного участка.
Продажа объекта недвижимости или проектного юр.лица.
Платим комиссию агентам. Звоните!
03.10.2017 | 1
№124819
Цена за м2 455 070 ₽
Местоположение
ГородМосква
МетроМарксистская
Параметры объекта
Этажность3
Площадь общая1736
Основное
2017-10-03 09:38:38
Похожие объявления
Отдел коммерческой недвижимости
Скажите, что нашли эти контакты на сайте поиска
недвижимости КваддРу
недвижимости КваддРу
