Главная Коммерческая Продажа Офисы Объект №124842
Продам офис в Москве, д 8 стр 4
На карте
Инфраструктура Панорама
Инфраструктура
Школы
Детские сады
Поликлиники
Продуктовые магазины
Кафе
Об объекте
ID: L7781
Продается отдельно стоящее здание в шаговой доступности от метро Бауманская.
Бизнес-центр состоит из 4-х наземных этажа и подвала.
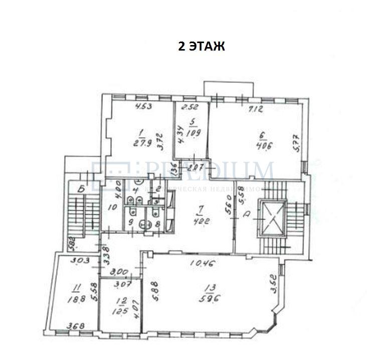
Планировка особняка включает зону ресепшн, 19 кабинетов, включая два кабинета Open space, 4 кабинета для руководителей, 2 переговорные комнаты, 7 общих санузлов, мини кухню и техническое помещение.
Особняк оснащен всеми современными коммуникациями, на территории имеется наземный и подземный паркин (3 м/м)г.
ДАЗУ до 2044 г.
В здании 1 лифт Сигма, сплинкерная система пожаротушения, приточно-вытяжная вентиляция, центральное кондиционирование, СКД, система видеонаблюдения.
Подвал - 187,6 кв.м., h - 2,75 м.
1 эт. - 273 кв.м., h - 2,75 м.
2 эт. - 229,3 кв.м., h - 3,0 м.
3 эт. - 214,3 кв.м., h - 3,0 м.
4 эт. - 223,7 кв.м., h - 3,0 м.
14.04.2015 | 1
№124842
Цена за м2 367 347 ₽
Местоположение
ГородМосква
МетроБауманская
Параметры объекта
Этажность4
Площадь общая1225
Основное
2015-04-14 10:11:59
Отдел коммерческой недвижимости
Скажите, что нашли эти контакты на сайте поиска
недвижимости КваддРу
недвижимости КваддРу
