Главная Коммерческая Продажа Офисы Объект №124827
Продам офис в Москве, Басманный тупик, д 6А стр 1
На карте
Инфраструктура Панорама
Инфраструктура
Школы
Детские сады
Поликлиники
Продуктовые магазины
Кафе
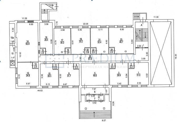
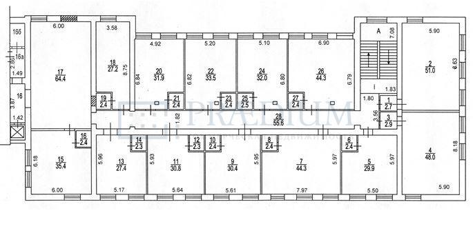
Об объекте
ID: L7249
Продажа бизнес-центра класса В+ с арендаторами.
В 5-ти минутах ходьбы от станции "Красные ворота".
Бизнес-центр состоит из 2-х строений.
100% площадей сдано в аренду.
Окупаемость 8 лет.
Доходность 12%.
22.05.2014 | 3
№124827
Цена за м2 221 715 ₽
Местоположение
ГородМосква
МетроКрасные ворота
УлицаБасманный тупик
Параметры объекта
Этажность6
Площадь общая14520
Основное
2014-05-22 14:28:26
Другие объявления по Басманный тупик
Отдел коммерческой недвижимости
Скажите, что нашли эти контакты на сайте поиска
недвижимости КваддРу
недвижимости КваддРу
