Продам офис в Москве, д 1 стр 12
На карте
Об объекте
ID: L2816
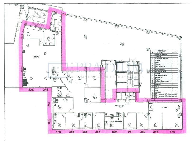
Продается офис 473,5м2. Выполнен свежий ремонт, функциональная планировка: ресепшн, переговорная, 10-11 кабинетов, кабинет руководителя с комнатой отдыха, открытый зал сотрудников, серверная и мини-кухня. Имеется 4 парковочных места (за доп.стоимость). Блок сдан в долгосрочную аренду. Продажа недвижимости, условия по запросу.
08.06.2010 | 1
№125075
Цена за м2 3 692 ₽
Местоположение
ГородМосква
МетроДинамо
Параметры объекта
Этаж5
Этажность11
Площадь общая474
Основное
2010-06-08 08:11:52
Похожие объявления
Отдел коммерческой недвижимости
Скажите, что нашли эти контакты на сайте поиска
недвижимости КваддРу
недвижимости КваддРу
