Главная Коммерческая Продажа Офисы Объект №125578
Продам офис в Москве, д 6 стр 2
На карте
Инфраструктура Панорама
Инфраструктура
Школы
Детские сады
Поликлиники
Продуктовые магазины
Кафе
Об объекте
ID: L7458
Продается блок без отделки.
Премиальный офисный квартал. Состоит из 3-х башен.
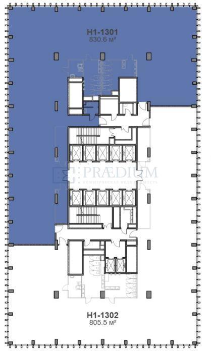
Типовая площадь этажа 1860 кв. м
Остекление в пол.
Предусмотрена створка для естественного проветривания.
Высота потолков: 3,65 м
Район застройки отличает сложившаяся инфраструктура и развитое транспортное сообщение. В шаговой доступности от STONE Пресня расположены три станции метро: «Улица 1905 года», «Белорусская» (кольцевая и радиальная линии), и станции МЦД-1. Местоположение будущего бизнес-центра характеризуется также удобным выездом на Садовое кольцо и ТТК.
04.09.2023 | 1
№125578
Цена за м2 494 762 ₽
Местоположение
ГородМосква
Параметры объекта
Этаж13
Этажность23
Площадь общая831
Основное
2023-09-04 07:35:28
Отдел коммерческой недвижимости
Скажите, что нашли эти контакты на сайте поиска
недвижимости КваддРу
недвижимости КваддРу
