Продам офис в Москве, д 3
На карте
Об объекте
ID: L12400
Уважаемый Покупатель, предлагаем Вам приобрести в бизнес-центре А класса STONE Савеловская (башня 2) отличный офис 918 м2 на 22-м этаже в собственность на выгодных условиях. Звоните сейчас и поедем смотреть!
О помещении:
Остекление в пол. Предусмотрена возможность
естественного проветривания. Отделка Shell&Core.
О бизнес-центре:
Бизнес-центр представляет собой две башни.
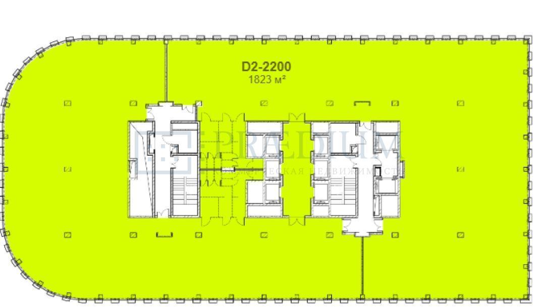
Площадь типового этажа - 1 880 кв.м. Высота потолков - 3,65 м.
Локация:
Бизнес-центр класса А STONE Савеловская расположен в 500 метрах от ТТК и в 7 минутах пешком от метро «Савеловская». Район обладает исключительной транспортной доступностью благодаря пересечению нескольких крупных транспортных путей: радиальные и кольцевые линии метро и ветки МЦД позволяют удобно добраться в центр города и за его пределы.
Быстро реагируем на обращения, организуем встречу на объекте в удобное для Вас время, направим план и ответим на все возникшие вопросы.
Сотрудничаем с агентствами/брокерами/консультантами/риелторами.
Звоните, уточняйте индивидуальные условия и арендуйте!
26.12.2022 | 1
№125564
Цена за м2 559 818 ₽
Местоположение
ГородМосква
МетроСавёловская
Параметры объекта
Этаж22
Этажность24
Площадь общая919
Основное
2022-12-26 09:39:27
Похожие объявления
Отдел коммерческой недвижимости
Скажите, что нашли эти контакты на сайте поиска
недвижимости КваддРу
недвижимости КваддРу
