Продам офис в Москве, д 3
На карте
Об объекте
ID: L8200
Эксклюзивное предложение! Лучшее инвестиционное предложение на рынке!
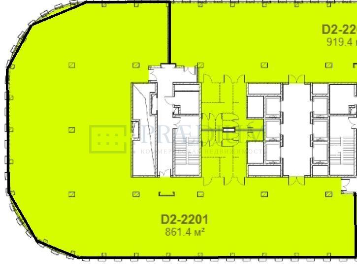
В продаже офисный блок 861,4 м2 в новом проекте класса А Stone Савеловская.
4 станции метро и 3 платформы МЦД в шаговой доступности. 500 м2 от ТТК.
Уникальная архитектура проекта - две офисные башни, объединенные единым стилобатом.
Воздушный фасад. Остекление в пол. Вентиляция и естественное проветривание.
Премиальное лобби. Лаунж-зона. Здание спроектировано по принципу Healthy building.
Умные экологичные технологии.
17 000 м2 общая площадь благоустроенной территории для резидентов.
10 000 м2 инфраструктуры.
Торговая галерея. Высокий уровень озеленения.
Передача помещений уже в 2025 году!
Выгодные условия приобретения – беспроцентная рассрочка на 6 месяцев.
Также предусмотрена комфортная рассрочка до конца строительства по привлекательной ставке!
Ежемесячное повышение цен! Успейте забронировать свой лот по самой выгодной цене!
Звоните прямо сейчас!
26.12.2022 | 1
№125573
Цена за м2 559 871 ₽
Местоположение
ГородМосква
МетроСавёловская
Параметры объекта
Этаж22
Этажность24
Площадь общая863
Основное
2022-12-26 09:39:27
Похожие объявления
Отдел коммерческой недвижимости
Скажите, что нашли эти контакты на сайте поиска
недвижимости КваддРу
недвижимости КваддРу
