Главная Коммерческая Продажа Офисы Объект №126296
Продам офис в Москве, д 11 стр 33
На карте
Инфраструктура Панорама
Инфраструктура
Школы
Детские сады
Поликлиники
Продуктовые магазины
Кафе
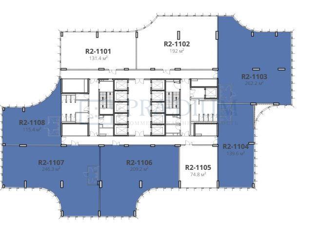
Об объекте
ID: L11914
Продажа уникального офиса в новом бизнес центре STONE Римская, который возводится в шаговой доступности от станций метро Римская, Площадь Ильича и остановок МЦД-2 и МЦД-4, формирующих единый транспортно-пересадочный узел Серп и Молот.
В продаже офисы различного формата: с лоджией или без неё.
STONE Римская – две офисные башни общей площадью 70 500 м2, объединенные двухуровневым стилобатом, где разместится вся необходимая инфраструктура.
Особый акцент на световом пространстве: гигантские окна от пола до потолка обеспечивают естественный свет и возможность регулярного проветривания.
Многофункциональная инфраструктура: весь спектр сервисов для комфортной жизни и работы, включая кафе, столовую, спортзал, аптеки и финансовые учреждения.
Расстояние до ближайшего выезда на Садовое кольцо — одна остановка метро, 3 минуты до ТПУ Серп и Молот, 900 метров до Третьего транспортного кольца.
Заинтересованы в аренде или покупке коммерческой недвижимости, записывайтесь на индивидуальный просмотр. Звоните!
12.07.2024 | 1
№126296
Цена за м2 461 442 ₽
Местоположение
ГородМосква
МетроПлощадь Ильича
Параметры объекта
Этаж11
Этажность23
Площадь общая209
Основное
2024-07-12 14:41:51
Отдел коммерческой недвижимости
Скажите, что нашли эти контакты на сайте поиска
недвижимости КваддРу
недвижимости КваддРу
