Главная Коммерческая Продажа Офисы Объект №126310
Продам офис в Москве, д 11 стр 33
На карте
Инфраструктура Панорама
Инфраструктура
Школы
Детские сады
Поликлиники
Продуктовые магазины
Кафе
Об объекте
ID: L8142
Эксклюзивное предложение! Лучшее инвестиционное предложение на рынке!
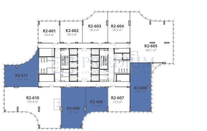
В продаже офисный блок 115.1 м2 в новом проекте класса А Stone Римская.
Уникальная архитектура проекта - две офисные башни в стиле black&white, объединенных единым стилобатом.
Панорамное остекление. Пешая доступность от метро.
В стилобате будет реализовано мультиформатное пространство с зонами для свободной работы, кафе и рестораны, фитнес-студия, конференц-зал, лаунж пространства.
Самая современная инженерия. Передовые технологии.
Выгодные условия приобретения - первый платеж от 10% + отложенный платеж.
Предусмотрена комфортная рассрочка до конца строительства.
Ежемесячное повышение цен! Успейте забронировать свой лот по самой выгодной цене!
Звоните прямо сейчас!
12.07.2024 | 1
№126310
Цена за м2 483 420 ₽
Местоположение
ГородМосква
МетроПлощадь Ильича
Параметры объекта
Этаж6
Этажность23
Площадь общая115
Основное
2024-07-12 14:41:51
Отдел коммерческой недвижимости
Скажите, что нашли эти контакты на сайте поиска
недвижимости КваддРу
недвижимости КваддРу
