Продам офис в Москве, Старокалужское шоссе, д 64 стр 3
На карте
Об объекте
ID: L11410
ВНИМАНИЕ ПОКУПАТЕЛЕЙ! Оперативно ответим на возникшие вопросы. Направим подробную презентацию с планировками, фотографиями и коммерческими условиями.
Продажа офисной Башни К-3 у м. Калужская в премиальном деловом квартале общей площадью 83 000 кв.м..
Общая площадь 24 000 кв.м.
Наземная площадь 21 000 кв.м.
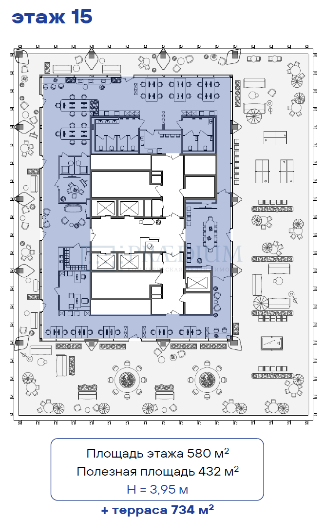
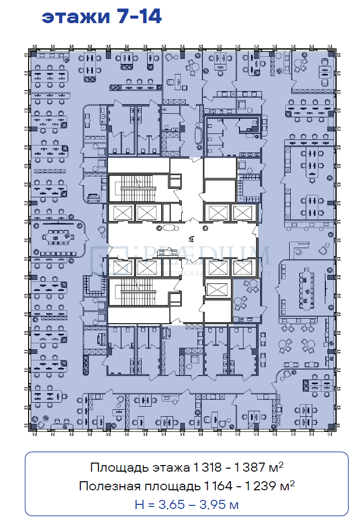
Общая площадь этажа в башне от 600 до 1 420 м2
Площадь террасы на 15-м этаже 800 м2
20 наземных и 2 подземных этажа
Офисная башня на выходе из метро
Двусветное лобби 350 м2 с высотой потолков до 8 м
Функциональные офисные этажи
Доступ ко всей инфраструктуре офисного квартала
Ввод здания в эксплуатацию 3кв. 2028г.
Некотороые технические характеристики комплекса:
Приточно-вытяжная система вентиляции с функцией охлаждения и подогрева
Центральное кондиционирование
Круглосуточное видеонаблюдение по периметру, на территории паркинга и велопарковок
Бесшумные скоростные лифты, оборудованные интеллектуальной системой управления пассажиропотоком
Многоступенчатая система очистки воздуха
Бесконтактный доступ в здание: Face ID, смартфон, гостевые пропуска по QR-коду
Подземный паркинг:
Двухуровневый подземный паркинг
Зарядки для электромобилей
Мото-места
Инфраструктурный паркинг:
Гостевой паркинг
Паркинг для автомобилей каршеринга
Зона остановки такси
Станции проката велосипедов и самокатов
Парковочные места для собственных СИМ
Велодорож
По вашему запросу, мы направим Вам:
1. Презентацию с фотографиями и планировками, которую вышлем в течении 10 минут в Whatsapp/Telegram или на почту, чтобы Вы смогли обсудить с коллегами или передать руководству. Просто позвоните по телефону в объявлении и попросите менеджера прислать Вам всю информацию по объявлению.
2. Подборку предложений с аналогичными объектами, если Вам нужно предоставить несколько объектов для сравнения.
3. Устроим показ помещения в удобное для Вас время. Можем записать видео тур и отправить его в любой мессенджер или на почту.
Звоните нам в любое время!
ДЕЛИМСЯ КОМИССИЕЙ С АГЕНТАМИ.
16.04.2024 | 1
№126356
Цена за м2 177 040 ₽
Местоположение
ГородМосква
УлицаСтарокалужское шоссе
Параметры объекта
Этажность20
Площадь общая24260
Основное
2024-04-16 08:46:25
Похожие объявления
Другие объявления по Старокалужское шоссе
Отдел коммерческой недвижимости
Скажите, что нашли эти контакты на сайте поиска
недвижимости КваддРу
недвижимости КваддРу
