Продам офис в Москве, д 13 стр 7
На карте
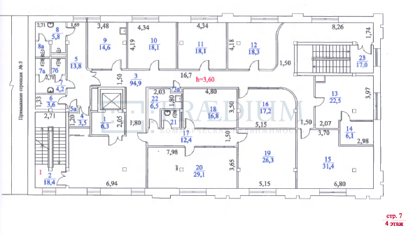
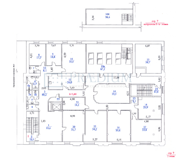
Об объекте
Уважаемый Покупатель, предлагаем Вам приобрести 2258.7 м² в собственность на выгодных условиях.
Планировка - смешанная. Приточно-вытяжная вентиляция. Интернет, телефония. Охрана. Видеонаблюдение. Система контроля доступа. Лифты: 1шт. пассажирский. Наземная парковка.
ЦАО Москвы. В 10 минутах от м. Бауманская
Быстро реагируем на обращения, организуем встречу на объекте в удобное для Вас время, направим план помещения и ответим на все возникшие вопросы!
Звоните сейчас и получите лучшие условия на рынке!
ID: o18236
17.05.2011 | 1
№129386
Цена за м2 159 363 ₽
Местоположение
ГородМосква
МетроБауманская
Параметры объекта
Этажность4
Площадь общая2259
Основное
2011-05-17 07:54:51
Похожие объявления
Отдел коммерческой недвижимости
Скажите, что нашли эти контакты на сайте поиска
недвижимости КваддРу
недвижимости КваддРу
